Exercice LiveView : effacement et découpage d'une image

Dans cet exercice, vous allez effacer de petites entités d'une image et effectuer un découpage autour d'une autre entité.

Pour effacer et découper les objets
1

Ouvrez le fichier C:\Program Files\Autodesk\AutoCAD Raster Design 2020\Getting Started Guide\LiveView_Rub.dwg.

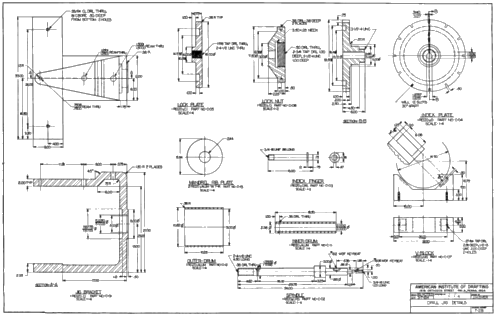
Vous voyez plusieurs entités distinctes dans une image numérisée.

2

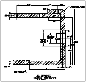
Effectuez un zoom avant sur l'affichage afin de voir clairement l'objet Mandrel Rib Plate.

Dans les étapes suivantes, vous allez supprimer cet objet de l'image.

3

Cliquez sur le menu Raster SupprimerRégion rectangulaire.

Cliquez et tracez un rectangle autour de l'objet Mandrel Rib Plate et de son cartouche, cliquez à l'aide du bouton droit de la souris, puis choisissez Entrer pour effacer la région.

Pour aller plus loin : effacez d'autres objets, à l'exception de l'objet Jig Bracket dans l'angle inférieur gauche. Pour ce faire, choisissez un autre type de région dans le menu Supprimer.

4

Effectuez un zoom avant sur l'affichage pour voir clairement l'objet Jig Bracket dans l'angle inférieur gauche.

A l'étape suivante, vous allez créer une région de découpage autour de cet objet.

5

Cliquez sur le menu Raster DécouperRégion rectangulaire.

Cliquez et tracez un rectangle autour de l'objet Jig Bracket et de son cartouche, puis cliquez de nouveau.

L'ensemble de l'image située en dehors de la région de découpage est supprimée. Vous pouvez éventuellement enregistrer cette image de l'objet Jig Bracket sous un nouveau nom.