Passez en revue plusieurs exemples de workflow de cotation d'éléments de montage dans des vues de dessin d'exécution de préfabrication.
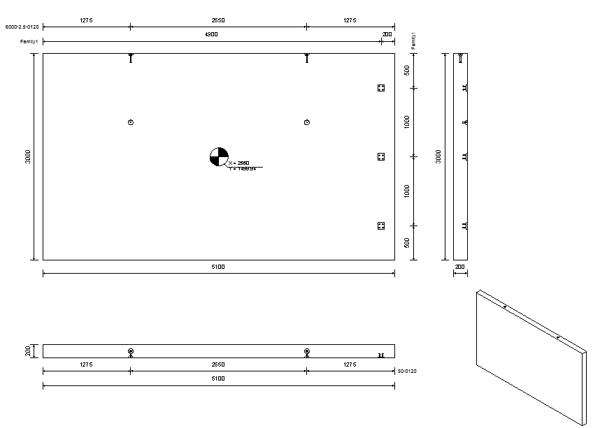
Les cotes de tous les éléments de montage d'une même famille sont placées sur une même ligne si elles sont placées sur le même côté de l'hôte. La référence de ce placement est le centre de l'élément. Tous les éléments de montage ayant le même nom de famille au-dessus du centre de l'hôte sont cotés au-dessus de l'élément. Les éléments de montage au-dessous du centre sont cotés sous l'élément. Il en est de même pour les lignes de cote verticales. Les points de cotation situés sur les étendues de l'hôte sont ajoutés à la ligne de cote, en plus des points de cote des éléments de montage (un point à gauche et à droite ou un en haut et en bas).



groupe de fonctions Segmentation
(Scinder) pour scinder le mur.
groupe de fonctions Connexions
(Éléments de montage) pour ajouter les plaques d'ancrage à l'assemblage.
groupe de fonctions Fabrication
(Dessins d'exécution) pour créer un plan d'exécution pour l'assemblage.

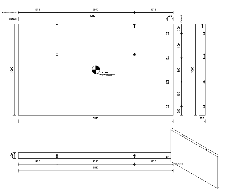
Reprenant le nom de la sous-catégorie, les lignes de cote doivent être créées uniquement lorsque vous affichez les plaques d'ancrage du haut (comme dans la famille). Le mur de cet exemple se trouve uniquement dans la vue de face.


Définissez une sous-catégorie et le paramètre de visibilité comme dans le premier exemple.
groupe de fonctions Segmentation
(Scinder) pour scinder le mur.
groupe de fonctions Connexions
(Éléments de montage) pour ajouter les plaques d'ancrage à l'assemblage.
groupe de fonctions Fabrication
(Dessins d'exécution) pour créer un plan d'exécution pour l'assemblage.

groupe de fonctions Fabrication
(Dessins d'exécution) pour créer un plan d'exécution pour l'assemblage.

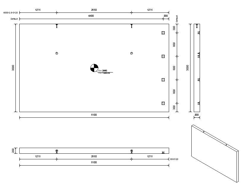
Les étendues des plaques d'ancrage sont cotées dans toutes les vues (à l'aide d'une cote, car il s'agit toujours de la même famille).
Dans les vues de dessus et de face, seule la plaque est cotée (sans les ancrages), car dans ces vues, seules les faces arrondies des ancrages sont visibles, éliminant ainsi les références à coter.


groupe de fonctions Segmentation
(Scinder) pour scinder le mur.
groupe de fonctions Fabrication
(Dessins d'exécution) pour créer un plan d'exécution pour l'assemblage.
