La propriété Discipline détermine le mode d'affichage des éléments spécifiques à la discipline dans une vue.
Utilisez la propriété Discipline pour contrôler les comportements suivants :
La propriété Discipline a une incidence sur les vues si vous utilisez un modèle unique englobant plusieurs disciplines ou les liens d'un modèle vers d'autres modèles spécifiques à la discipline.
Cette propriété permet également d'organiser les vues dans l'arborescence du projet. Voir Organisation des vues dans l'arborescence du projet.
Pour définir la propriété Discipline d'une vue, sélectionnez le nom de la vue dans l'arborescence du projet, ou ouvrez la vue. Dans la palette Propriétés, la propriété Discipline est indiquée dans la section Graphisme. Sélectionnez une valeur dans la liste.
Les exemples ci-dessous sont basés sur un modèle avec vue en plan de niveau 1. Dans la vue en plan, la flèche verte indique la plage de la vue pour les vues en plan correspondantes. La flèche bleue indique la plage de la vue principale, qui a été étendue dans le plénum au-dessus du plafond et au-dessous du niveau 1. La flèche orange indique la profondeur de la vue. (Voir A propos de la plage de la vue.) Dans l'exemple de vue en plan ci-dessous, le niveau de détail est défini sur Elevé afin que les éléments mécaniques, électriques et de canalisation s'affichent plus entièrement à des fins d'illustration.

Si vous le souhaitez, vous pouvez télécharger le modèle pour mieux comprendre l'incidence de la propriété Discipline sur les vues : view_discipline_example.rvt
Lorsque vous créez une vue basée sur une vue existante, la nouvelle vue hérite de la discipline de la vue d'origine. Cette règle s'applique aux repères, coupes et élévations de vue ainsi qu'aux vues dupliquées.
Par exemple, supposons que vous ouvrez une vue de plan de structure (une vue en plan dont le paramètre Discipline est défini sur Structure) et que vous utilisez l'outil Section pour créer une coupe de la vue en plan. La propriété Discipline de la nouvelle vue en coupe est également définie sur Structure.
Les étiquettes de vue (les symboles utilisés pour indiquer les coupes, élévations et repères) apparaissent dans une vue uniquement si la discipline de la vue actuelle correspond à celle des vues cible. Voir les exemples ci-dessous.
Lorsque la propriété Discipline est définie sur Architecture :
Par exemple, la vue affiche les poteaux architecturaux et les poteaux porteurs, ainsi que les éléments de génie climatique, électriques et de canalisation.
Exemples : dans le plan d'étage architectural :
Sur un côté du mur, les chemins de câbles sont exposés. De l'autre côté du mur, les chemins de câbles sont masqués par un enrobage d'architecture.
Une étiquette s'affiche pour une vue en coupe dont la propriété Discipline est définie sur Architecture. Le plan n'affiche pas les étiquettes des vues affectées à d'autres disciplines.
Lorsque la propriété Discipline est définie sur Structure :
Par exemple, la vue affiche les poteaux architecturaux et les poteaux porteurs, ainsi que les éléments de génie climatique, électriques et de canalisation.
Exemples : dans la vue de plan structure suivante :
Les murs non porteurs ne s'affichent pas. (Effectuez une comparaison avec le plan architectural ci-dessus).
Une étiquette s'affiche pour une vue en coupe dont la propriété Discipline est définie sur Structure. Le plan n'affiche pas les étiquettes des vues affectées à d'autres disciplines.
Affichage des lignes cachées pour afficher des éléments d'ossature en dessous du niveau du sol, car la plage de la vue du plan s'étend au-dessous du niveau 1.

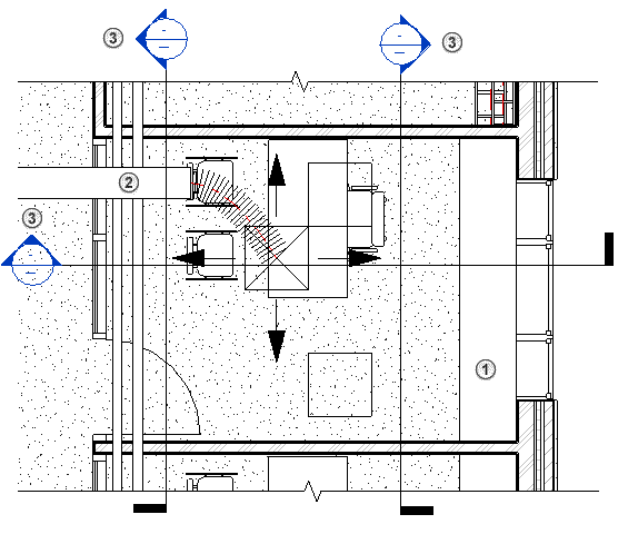
Lorsque la propriété Discipline est définie sur Mécanique, Electrique ou Plomberie :
Exemples : dans la vue en plan mécanique suivante :
Les éléments architecturaux et structurels (murs, portes, fenêtres, mobilier) s'affichent en demi-teinte en fonction de la plage de la vue. Les éléments de plafond ne s'affichent pas dans la vue.
Les éléments électriques, mécaniques et de canalisation s'affichent conformément aux styles d'objet définis. Ces éléments se superposent aux autres éléments, quel que soit leur emplacement vertical réel dans le modèle.
Une étiquette s'affiche pour une vue en coupe dont la propriété Discipline est définie sur Mécanique. Le plan n'affiche pas les étiquettes des vues affectées à d'autres disciplines.
Les lignes cachées des éléments électriques, mécaniques et de canalisation s'affichent dans la vue.

Lorsque la propriété Discipline est définie sur Coordination :
Par exemple, la vue affiche les poteaux architecturaux et les poteaux porteurs ainsi que les éléments de génie mécanique, électriques et de canalisation.
Certains éléments de génie mécanique, électriques et de canalisation situés à l'intérieur de la plage de la vue s'affichent que ces derniers croisent le plan de coupe ou non.
En outre, les éléments de génie mécanique, électriques et de canalisation situés au-dessus du plan de coupe sont dessinées par-dessus les autres éléments. L'ordre de dessin de ces éléments est défini par leur hauteur relative par rapport au niveau de la vue. Lorsque ces éléments se trouvent au-dessous du plan de coupe, ils sont dessinés dans l'ordre, en fonction de la distance par rapport au plan de coupe.
Exemples : dans la vue en plan de coordination suivante :
Les éléments de toutes les disciplines s'affichent dans la vue conformément à la plage de la vue.
Les éléments électriques,mécaniques et de canalisation s'affichent en se superposant aux autres éléments conformément aux règles décrites plus haut.
Les étiquettes s'affichent pour les vues en coupe de toutes les disciplines.
