Au cours de l'exercice, vous allez finaliser l'intérieur du modèle en ajoutant un escalier à la mezzanine au niveau inférieur, puis en modifiant le garde-corps de la mezzanine.
|
Catégorie
|
Nouveaux utilisateurs
|
|
Temps nécessaire
|
15 minutes
|
|
Fichiers didacticiels utilisés
|
GSG_09_stairs_railings.rvt
|
|
Avant de commencer, téléchargez le fichier GSG_09_stairs_railings.rvt.
Objectifs
- Créer un escalier entre le magasin et la mezzanine.
- Modifier le garde-corps de l'escalier pour inclure la mezzanine.
- Modifier le type de garde-corps en garde-corps tubulaire.
Visionner la vidéo
Création d'escaliers
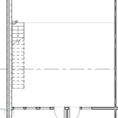
- Ouvrez le projet GSG_09_stairs_railings.rvt.
- Vérifiez que le plan d'étage 01 - Store Floor est ouvert.
- Cliquez sur l'onglet Architecture
le groupe de fonctions Circulation
(Escalier).
- Dans la palette Propriétés, sous Contraintes :
- Pour Base Level, sélectionnez 01 - Store Floor.
- Pour Top Level, sélectionnez Mezzanine.
- Dans la barre des options, définissez la ligne d'emplacement sur Volée: gauche.
- Dans la pièce de stockage, cliquez sur le coin du niveau en fond de plan de la mezzanine pour démarrer la volée d'escalier.
- Déplacez le pointeur vers le bas jusqu'à ce que l'info-bulle indique qu'il ne reste plus aucune contremarche, puis cliquez afin d'indiquer le point d'arrivée de l'escalier.
- Dans le groupe de fonctions Mode, cliquez sur
(Terminer le mode de modification).
Modification du type de garde-corps
- Dans la barre d'outils d'accès rapide, cliquez sur
(Vue 3D par défaut).
- Sélectionnez le toit plat, utilisez
(Masquer/Isoler temporairement) dans la barre de contrôle Vue, puis choisissez Masquer l'élément.
- Sélectionnez le garde-corps sur le côté de l'escalier situé près du mur.
- Dans le sélecteur de type, sélectionnez 900 mm Pipe Wall.
- Cliquez sur Supprimer le type dans la boîte de dialogue d'avertissement.
- Sélectionnez le garde-corps de l'autre côté de l'escalier.
- Dans le sélecteur de type, sélectionnez 900 mm Pipe.
Partie 10 : Création de vues