Une vue de détail est une vue du modèle qui apparaît comme un repère ou une coupe dans d'autres vues. Ce type de vue représente généralement le modèle selon une échelle plus détaillée que dans la vue parent.
Vous pouvez créer une vue de détail comme une coupe ou comme un repère. Lorsque le détail est créé en tant que repère, des annotations de repère et de coupe peuvent lui être attribuées. En d'autres termes, une vue de détail créée comme un repère peut également être affichée comme une coupe dans les vues qui croisent l'étendue de la vue de détail. Par exemple, vous pouvez utiliser un repère pour créer une vue de détail d'une d'intersection de mur. Ce même repère peut apparaître sous forme de vue en coupe dans la vue en coupe globale du bâtiment.
La visibilité d'une étiquette de vue de détail dépend de l'échelle de la vue parente et des caractéristiques de la limite de cadrage de la vue de détail (si elle croise la limite de cadrage de la vue parente ou si elle est totalement incluse dans celle-ci). Le paramètre de vue de détail Cacher pour une échelle plus petite que établit l'échelle à laquelle les détails sont affichés ou masqués dans les autres vues. Si, par exemple, une étiquette de détail est censée être masquée à des échelles dont le niveau de détail est plus faible que 1/4"=1'0", une vue dont l'échelle est réglée sur 1/8" = 1'-0" n'affiche donc pas l'étiquette de détail.
Toutes les vues de détail, qu'il s'agisse d'un repère ou d'une coupe, sont affichées dans l'arborescence du projet en tant que vues de détail.
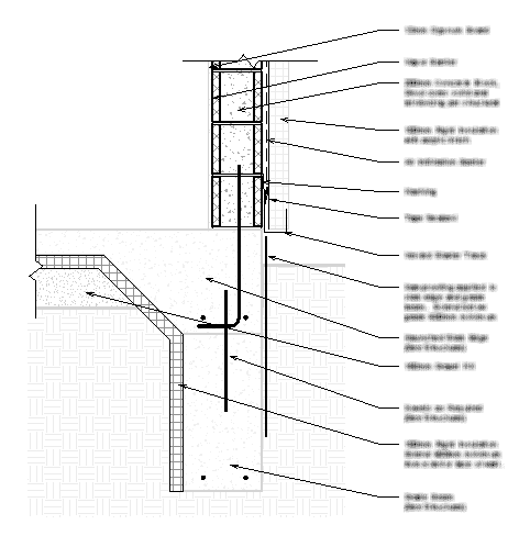
L'illustration suivante représente un détail de coupe de mur. La géométrie du modèle est en fond de plan (en demi-teinte) et des composants de détail 2D ont été dessinés sur les composants du modèle.
