Dans cet exercice, vous allez travailler sur plusieurs niveaux pour ajouter des murs extérieurs, des murs intérieurs et un couloir au projet.
|
Catégorie
|
Nouveaux utilisateurs
|
|
Temps nécessaire
|
15 minutes
|
|
Fichiers didacticiels utilisés
|
GSG_02_Create_Walls.rvt
|
|
Avant de commencer, téléchargez le fichier de données GSG_02_Create_Walls.rvt.
Objectifs
- Ajouter des murs extérieurs en les dessinant à l'aide de points sélectionnés.
- Ajouter des murs intérieurs au niveau inférieur à l'aide de l'outil Mur.
- Utiliser l'outil Ajuster/Prolonger afin de créer une ouverture pour un couloir.
Visionner la vidéo
Modification de murs extérieurs
- Dans la vue 3D, sélectionnez les murs dans les angles du bâtiment. Utilisez une sélection contenant une fenêtre et maintenez la touche Ctrl enfoncée pour ajouter des murs à la sélection.
- Dans la palette Propriétés, pour la contrainte supérieure, sélectionnez 03 - Upper Parapet et cliquez sur Appliquer.
- Appuyez sur Échap pour désélectionner les murs.
- Sélectionnez les deux murs au niveau de l'angle avant droit du bâtiment. Dans la palette Propriétés, définissez le décalage inférieur sur 4250mm.
- Dans le sélecteur de type, modifiez le type de mur et définissez-le sur Extérieur - Rendu sur brique sur bloc @ Entrée.
Ajout de murs intérieurs
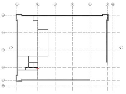
- Dans l'arborescence du projet, sous Plans d'étage, double-cliquez sur 01 - Store Floor.
- Cliquez sur l'onglet Architecture
le groupe de fonctions Création
(Mur).
- Dans le sélecteur de type, sélectionnez
Intérieur - Cloison 138 mm (1-hr).
- Dans la barre des options :
- Pour Hauteur, sélectionnez 02 - Lower Parapet.
- Dans la liste déroulante Ligne de justification, sélectionnez Axe du mur.
- En vous basant sur l'image suivante, placez des murs intérieurs pour créer des pièces :
- Le positionnement exact n'a pas d'importance.
- Lors de la disposition des murs, vous pouvez activer ou désactiver l'option Chaîner. Cette option permet de placer plusieurs murs de bout en bout. Lorsqu'elle est désactivée, les deux extrémités de chaque mur doivent être spécifiées. Testez les deux configurations.
- Modifiez les murs afin de créer un couloir :
- Cliquez sur
(Modifier) afin de terminer la commande.
Partie 3 : Création d'un terrain et d'un terre-plein