A propos de l'Editeur de familles

L'Editeur de familles est un mode de modification graphique qui vous permet de créer et de modifier des familles à inclure dans un projet.

Pour créer une famille, vous ouvrez d'abord le gabarit à utiliser dans l'Editeur. Ce gabarit peut inclure plusieurs vues, telles que des plans et des élévations. L'Editeur de familles est conçu selon la même convivialité que l'environnement du projet de Revit LT, mais présente des outils différents. La disponibilité des outils dépend du type de famille que vous modifiez.

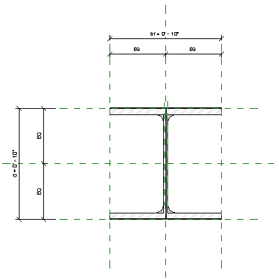
L'image suivante montre une vue en plan d'une famille de poteaux à ailes dans l'Editeur de familles. Les plans de référence en pointillés verts sont utilisés pour contraindre la géométrie dans la famille.