In questo esercizio verrà corretto un disegno eliminandone le imperfezioni.
| Come rimuovere imperfezioni da un'immagine | ||
|---|---|---|
| 1 |
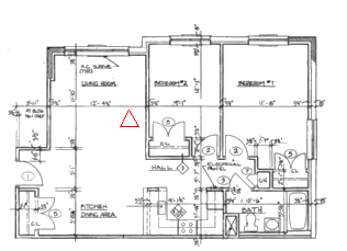
Aprire il file C:\Programmi\Autodesk\AutoCAD Raster Design 2020\Getting Started\ LiveView_Clean.dwg. Questo disegno contiene un triangolo vettoriale rosso che racchiude una delle più grandi imperfezioni dell'immagine. |
![]() |
| 2 | Ingrandire l'immagine per visualizzare in modo più chiaro l'imperfezione all'interno del triangolo. |
![]() |
| 3 | Fare clic sul menu Raster Correggi Rimuovi imperfezioni.
Premere INVIO per elaborare l'intera immagine. |
![]() |
| 4 | Fare clic sull'imperfezione all'interno del triangolo rosso.
Il sistema riporta la dimensione dell'imperfezione (0,025 unità di disegno o 5 pixel) ed evidenzia tutte le imperfezioni di dimensione inferiore a quella riportata per l'eventuale rimozione. |
![]() |
| 5 | Analizzare, ingrandendole, le varie aree dell'immagine per controllare le imperfezioni. Fare clic per deselezionare le imperfezioni che non si desidera eliminare: ad esempio il punto di "A.C. SLEEVE" in alto a sinistra.
Premere INVIO per eliminare le rimanenti imperfezioni evidenziate. |
![]() |
| 6 | In alto a sinistra si noteranno alcune imperfezioni che non sono state eliminate, in quanto sono di dimensioni superiori rispetto a quella contenuta nel triangolo rosso. Queste imperfezioni possono essere eliminate manualmente. |
![]() |