ミニ チュートリアル: ベクトルを合成する

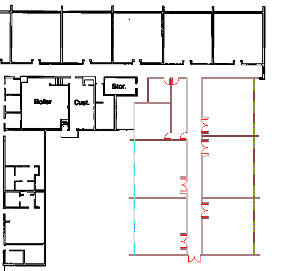
この練習では、図面を更新して、新しいベクトル データを既存のラスター データと合成します。

ベクトルをラスター データに合成するには
1

次のファイルを開きます。C:¥Program Files¥Autodesk¥AutoCAD Raster Design 2020¥Getting Started Guide¥LiveView_Merge.dwg

学校の図面が表示されます。白いラスター データは元の建物を示し、色つきのベクトル データは追加された教室を示しています。

2 [ラスター]メニュー[合成][ラスター ペン設定]を選択します。[ラスター ペン設定]ダイアログ ボックスが表示されます。
3

[赤]ペン カラーを選択し、ペン幅を 1 ピクセルに設定して、[OK]をクリックします。

この設定により、ドアが壁より細いラスター ラインで描かれます。

4

[ラスター]メニュー[合成][ベクトルをラスターに]を選択します。周りに窓を描くことで新しい教室のベクトル ブロックを選択し、右クリックして選択を終了します。[Enter]を押して、合成の後でベクトルを削除する既定値の設定を受け入れます。

ベクトル データがラスター データと合成されます。