この練習では、いくつかの小さな図形をイメージから削除で消去し、別の図形をクロップします。
| オブジェクトを削除で消したり、クロップするには | ||
|---|---|---|
| 1 |
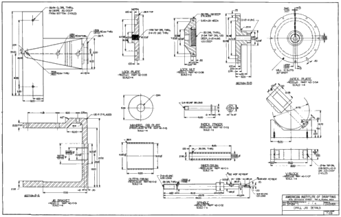
次のファイルを開きます。C:¥Program Files¥Autodesk¥AutoCAD Raster Design 2020¥Getting Started Guide¥LiveView_Rub.dwg スキャンされたイメージにいくつかの個別のイメージがあります。 |
![]() |
| 2 |
「Mandrel Rib Plate」オブジェクトがはっきり見えるように表示を拡大ズームします。 次の手順では、このオブジェクトをイメージから削除します。 |
![]() |
| 3 |
[ラスター]メニュー クリックして、「Mandrel Rib Plate」とそのタイトル ブロックの周囲に長方形を描いて、右クリックし、[Enter]をクリックして領域を削除で消去します。 続きの練習: 左下の隅にある「Jig Bracket」以外のオブジェクトを削除で消去します。これを行うには、[削除]メニューで他の領域タイプのいくつかを使用します。 |
![]() |
| 4 |
左下隅にある「Jig Bracket」がはっきり見えるように表示を拡大ズームします。 次の手順で、このオブジェクトの回りにクロップ領域を作成します。 |
![]() |
| 5 |
[ラスター]メニュー クリックして「Jig Bracket」とそのタイトル ブロックの回りに長方形を描き、クリックします。 クロップ領域の外側にあるすべてのイメージが削除されます。必要に応じて、この「Jig Bracket」イメージを新しい名前で保存できます。 |
![]() |