許容差の計算式

次のイメージから、閉じた長さ寸法のチェーンの基本的な計算式を導き出します。

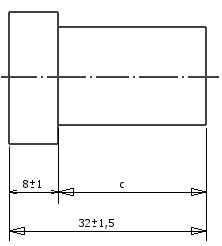
a = 32 ± 1.5 mm、b = 8 ± 1 mm

増加/減少要素

増加要素が増えると、閉じている要素も増加します。減少要素が増加すると、チェーンの他の要素が一定の場合に閉じている要素が減少します。

閉じている要素

1. c = a - b

閉じている要素の上限寸法

2. c max = a max - b min

閉じている要素の下限寸法

3. c min = a min - b max

閉じている要素の許容差(計算式 2 から計算式 3 の減算)

4. c max - c min = a max - a min - (b min - b max )

5. T c = T a + T b

注: 閉じている要素の許容差は、すべての閉寸法チェーン要素の許容差の和に等しくなります。

一般的に、直線チェーンの公差は次の計算式を満たしています。

同様に、計算式 2 および 3 も、一般的な形に記述できます。

閉じている要素の上限寸法は、増加要素の上限寸法の和と減少要素の下限寸法の和の差に等しくなります。

閉じている要素の下限寸法は、増加要素の下限寸法の和と減少要素の上限寸法の和の差に等しくなります。

閉じている要素の呼び寸法は、計算式 1 を使用して次の計算式のように表すことができます。

閉じている要素の上限許容値

閉じている要素の下限許容値