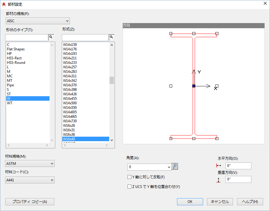
[部材を編集]ダイアログ ボックス

構造部材を編集します。

形状の規格

部材の規格を編集します。

形状のタイプ

形状のタイプを編集します。

形式

形式を編集します。

材料規格

部材の材料規格を編集します。

材料コード

部材の材料コードを編集します。

角度

角度値を編集します。現在の値を 90 度増加するには、 をクリックします。

Y 軸に対して反転

部材の方向を反転します。

Z UCS でY軸を位置合わせ

Y 軸を Z UCS に揃えて、部材の方向を設定します。

水平

元の水平位置を、入力した値に変更します。

垂直

元の垂直位置を、入力した値に変更します。

プロパティ コピー

作図領域内の部材をクリックするように求めるプロンプトが表示されます。部材をクリックすると、クリックした部材と同一の値が各フィールドに設定されます。

方向

構造オブジェクトに適用した選択済みオプションのプレビューが表示されます。