概要 - オルソ図面(投影図)

Plant 3D モデルのカスタム オルソビューを作成し、このような投影ビューを 2D 図面に配置することができます。

オルソ図面は DWG ファイルであり、各ファイルには Plant 3D モデルから出力したデータを含むオルソ ビューを複数格納できます。基のモデルが変更された場合は、オルソ図面を更新して、その変更を反映できます。

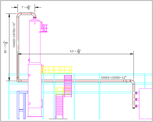
オルソ図面には、Plant 3D モデルの配管、バルブ、機器、および構造用鋼の 2 次元ビューが表示されます。図面には、注釈、寸法、マッチライン(平面図のみ)、配管ギャップを表示することができ、ラインとオブジェクトを表示または非表示にすることもできます。これは、1 つのビューを表示した場合です。

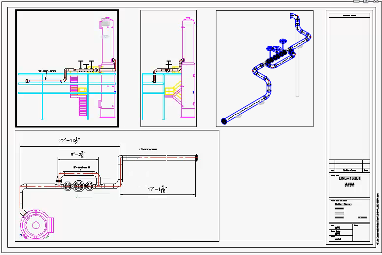
次は、1 つの図面内に複数のビューを表示した場合です。

タイトル ブロックを使用してオルソ図面をユーザ仕様にカスタマイズされたテンプレートを設定することも、既定のテンプレートを使用することもできます。

図面の参照(外部参照)とオーバーレイ外部参照とは

オルソ図面では、他の図面への参照を含むプロジェクト図面を使用できます。プロジェクト以外の外部参照も使用できますが、このような外部参照はグラフィックスとしてのみ表示されます。

制約事項: オーバレイされた外部参照は、オルソ図面には使用できません。オーバレイされた外部参照の詳細は、AutoCAD のヘルプ システムで 「オーバレイ」を検索してください。