패밀리 편집기 정보

패밀리 편집기는 프로젝트에 포함할 패밀리를 작성하고 수정할 수 있는 그래픽 편집 모드입니다.

패밀리 작성을 시작할 때 편집기에서 사용할 템플릿을 엽니다. 템플릿은 평면도 및 입면도와 같은 다중 뷰를 포함할 수 있습니다. 패밀리 편집기는 Revit의 프로젝트 환경과 동일한 외관과 느낌을 가지고 있지만 기능은 다른 도구입니다. 사용 가능한 도구는 편집 중인 패밀리 유형에 따라 다릅니다.

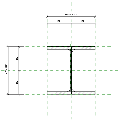
다음 이미지에서는 패밀리 편집기에서 와이드 플랜지 기둥 패밀리의 평면 뷰를 보여줍니다. 초록 파선의 참조 평면을 사용하여 패밀리의 형상을 구속합니다.