상세도
상세도를 작성하여 모델의 특정 부분에 더 많은 정보를 추가합니다.
뷰 탭
작성 패널
(콜아웃)
뷰 탭
작성 패널
(단면도)
이 단원의 항목
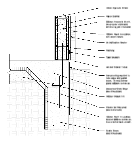
상세도 정보
상세 뷰는 다른 뷰에서 콜아웃이나 단면으로 표시되는 모델의 뷰입니다. 이러한 뷰 유형은 일반적으로 상위 뷰보다 더 상세한 축척으로 모델을 나타내며
콜아웃 뷰 참조 정보
구획도, 평면도 또는 입면도에서 상세 콜아웃을 작성할 때 뷰를 건물 모델의 특정 면적에 링크할 수 있습니다.
상세 뷰 유형 특성 정보
각 상세 뷰에는 구획 태그, 콜아웃 태그 및 참조 레이블에 대한 유형 특성이 있습니다.
비디오: 3D 상세정보 작성
3D 상세정보를 사용하여 모델의 요소를 표시합니다.
상세 뷰 작성
평면도, 구획도 또는 입면도에서 콜아웃을 작성한 후 모델 형상을 기초로 사용하여 상세 구성 요소를 추가할 수 있습니다. 콜아웃 또는 단면 상세를 작성할 때 모델의 다른 상세 또는 드래프팅 뷰를 참조할 수 있습니다.
상세 뷰 복제
뷰를 복제할 때 모델 형상과 상세 형상이 모두 새 뷰에 복사되는지 여부를 결정할 수 있습니다.
비디오: 뷰 복제
모델에서 뷰를 복제하여 다른 종류의 정보를 표시합니다.
외부 프로젝트에 뷰 저장
외부
Revit LT
프로젝트에 뷰를 저장할 수 있습니다. 이 작업은 뷰와 해당 뷰에서 볼 수 있는 모든 요소(모델 요소 및 뷰별 요소)를 새 프로젝트 파일에 저장합니다.
저장된 상세 뷰에서 상세 구성요소 삽입
상세 뷰 인스턴스(Instance) 특성
뷰의 인스턴스(instance) 특성을 수정하여 상세 뷰 태그의 화면표시를 제어합니다.
상위 주제:
상세