Используйте эту процедуру для исключения компонентов со специальным присвоенным определением материала из внешнего контура 2D разреза.
При формировании 2D разреза можно отобразить компонент под названием "Внешний контур". Внешний контур - это объединение всех граней объекта и разрезанных линией разреза, объединенных в один компонент единым образцом штриховки. Этот вид часто используется в 2D разрезе.
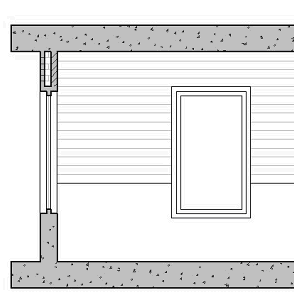
По умолчанию все компоненты, которым присвоены определения материалов, включены во внешний контур. Тем не менее, возможно, потребуется исключить конкретные определения материалов из внешнего контура, например, стекло.

Внешний контур 2D разреза с исключением стекла (слева)

. Диспетчер стилей отображается с текущим чертежом, развернутым в виде дерева.
Текущее экранное представление будет выделено.