拉伸现有连接器并添加、移动和替换连接器引脚。
“插入连接器”工具栏中包含用于修改连接器和连接器引脚的工具。还可以添加、删除或移动连接器内部的引脚。
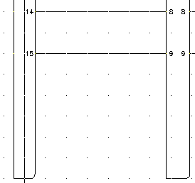
拉伸现有连接器


。 查找
指定要拉伸的连接器末端: 选择 PJ1 的底部
指定第二个位移点:
将连接器朝黑盒子 1 的底端下拉


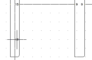
添加连接器引脚


。 查找
选择连接器: 选择 PJ1
指定要插入新引脚的位置或 [重置(R)] <16>:
选择从 PJ1 上的引脚 15 向下 4 个间距的位置处,并单击鼠标右键,然后选择“输入”
下一个可用引脚号 (16) 将插入在选定点处。



。 查找
选择连接器: 选择 PJ6
指定要插入新引脚的位置或 [重置(R)] <10>:
选择 PJ1 上的引脚 16 以在同一行插入引脚 10,单击鼠标右键,然后选择“输入”

修改连接器引脚


。 查找
选择要移动的连接器引脚: 选择 PJ1 上的引脚 16
为引脚 16 指定新位置: 选择自 PJ1 向上两个间距的位置
选择要移动的连接器引脚: 选择 PJ6 上的引脚 10
为引脚 10 指定新位置:
选择 PJ1 上的引脚 16 以与其对齐移动引脚 10,然后单击鼠标右键



。 查找
选择连接器引脚: 选择 PJ1 上的引脚 16
选择连接器引脚: 替换为: 选择 PJ1 上的引脚 12,然后单击鼠标右键


。 查找
选择要反转的连接器: 选择顶部的导线内连接器,然后单击鼠标右键



。 查找
引脚间距: 1.0
引脚数: 2
固定间距
引脚列表: 1
全部插入
指定插入点或 [Z=缩放,P=平移,X=导线交叉,V=水平/垂直,TAB=翻转]:
进行相应选择以将连接器放置在黑盒子 1 的顶部


。 查找
选择要旋转的连接器或 [保留(H)]:
选择新的连接器,单击鼠标右键,然后选择“输入”
