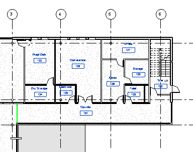
房间标记

房间与房间标记不同,但它们是相关的 Revit 构件。

与墙和门一样,房间在 Revit 中也是模型图元。 房间标记是可在平面视图和剖面视图中添加和显示的注释图元。 房间标记可以显示相关参数的值,例如房间编号、房间名称、计算的面积和体积等参数。