课程:详图设计结构模型 - 混凝土

了解如何在模型中将钢筋添加到混凝土图元。

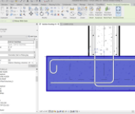
在本学习路径中,我们将研究继续从 BIM 工作流到项目详图设计阶段的最佳实践。此时,许多个人开始使用线条来制作详图,尤其是在显示钢筋时。本课程将向您展示,实际钢筋建模不仅仅与绘制线一样简单,而且效率更高,您会发现当详图完成时,在调整模型时,钢筋将随预定义的保护层设置一起移动。

本学习路径包含三节时长 20 分钟的课程:

要学习本课程,请转至“客户成功学习中心”(仅英文版详图设计设计结构模型 - 混凝土