Verschieben Sie ein Betriebsmittel entlang eines Drahts, und fügen Sie untergeordnete Betriebsmittel ein.
Wenn das Betriebsmittel nicht an der richtigen Position eingefügt wurde, können Sie das Betriebsmittel verschieben. Mit dem Werkzeug Verschieben können Sie ein Betriebsmittel oder eine Drahtnummer auswählen und unter Beibehaltung aller Verbindungen am Draht entlang vorwärts oder rückwärts verschieben. Sie können einen Draht oder einen ganzen Strompfad auswählen und an eine neue Position verschieben. Falls sich unter den verschobenen Elementen übergeordnete Betriebsmittel befinden, werden Sie gefragt, ob die verschobenen Betriebsmittel neu gekennzeichnet werden sollen.
Das Werkzeug Verschieben kann für Drahtnummern, Betriebsmittel, Klemmen, SPS-E/A-Module, Stufen in gestrichelten Verbindungslinien, Signalpfeile, Drähte und Drähte mit Drahtkreuzungsschleifen verwendet werden.

Verschieben eines Betriebsmittels


. Finden
Betriebsmittel, Draht oder Drahtnummer zum VERSCHIEBEN wählen:
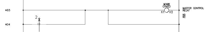
Wählen Sie das Betriebsmittel aus, das Sie auf Strompfad 403 eingefügt haben
Der Cursor ändert sich zu einem Kästchen.
Betriebsmittel, Draht oder Drahtnummer zum VERSCHIEBEN wählen: nach:
Verschieben Sie den Cursor nach rechts, und klicken Sie; klicken Sie mit der rechten Maustaste, um den Befehl abzuschließen.
Das Betriebsmittel wird an den neuen Ort verschoben.

Mit dem Werkzeug Verschieben können Sie ein Betriebsmittel oder eine Drahtnummer aufnehmen und am Draht entlang vorwärts oder rückwärts verschieben. Sie können einen Draht oder einen ganzen Strompfad aufnehmen und unter Beibehaltung aller Verbindungen an eine neue Position verschieben.
Die Schritte zum Einfügen eines übergeordneten Betriebsmittels und eines untergeordneten Betriebsmittels sind identisch und unterscheiden sich nur, wenn Sie das Symbol mit einer Beschriftung versehen.
Einfügen eines untergeordneten Betriebsmittels


. Finden
Einfügepunkt angeben:
Positionieren Sie den Cursor auf dem Draht am Strompfad 404 in der Nähe des stromführenden Drahts, und klicken Sie (1).

Das Dialogfeld Untergeordnetes Betriebsmittel einfügen/bearbeiten wird angezeigt. Beachten Sie, dass AutoCAD Electrical-Toolset nicht automatisch eine Betriebsmittel-Kennzeichnung für den Relaiskontakt zuweist; im Bearbeitungsfeld steht nur die allgemeine Kennzeichnung CR. Legen Sie die Betriebsmittel-Kennzeichnung für den Relaiskontakt fest. Ein Relaiskontakt ist ein untergeordnetes Betriebsmittel, das über eine Verknüpfung zu einer übergeordneten Relaisspule in einer Zeichnung im aktiven Projekt verfügen muss. Das untergeordnete Betriebsmittel erhält denselben Betriebsmittel-Namen wie die übergeordnete Relaisspule.
Weisen Sie die Betriebsmittel-Kennzeichnung zu, indem Sie auf Hauptsymbol/gleichg. Symbol klicken und das übergeordnete Betriebsmittel in der Zeichnung auswählen. Alternativ können Sie auch auf Zeichnung bzw. Projekt klicken und das Betriebsmittel in einer Liste von Betriebsmitteln mit demselben Gerätegruppennamen auswählen.
MCAB5 CR403 MASTER CONTROL RELAY

Die Werte des übergeordneten Betriebsmittels werden sofort auf den Kontakt übertragen.
Betriebsmittel-Kennzeichnung: CR403
Beschreibung: Zeile 1: MASTER-STEUERUNG
Beschreibung: Zeile 2: RELAIS
Querverweis: 403
Ortsbezeichnung: MCAB5
Anschlüsse: Anschluss 1: A1X
Anschlüsse: Anschluss 2: A1Y

Das untergeordnete Betriebsmittel wird eingefügt. Es wird ein Querverweis in Echtzeit erstellt. Die Spule wird mit der Strompfadnummer des neuen untergeordneten Kontakts als Beschriftung versehen. Auf die gleiche Weise wird der untergeordnete Kontakt mit der Strompfadposition der übergeordneten Spule beschriftet.
