LiveView-Übung: Zusammenführen von Vektoren

In dieser Übung aktualisieren Sie eine Zeichnung und führen neue Vektordaten mit vorhandenen Rasterdaten zusammen.

Anmerkung: Die Beispieldateien für das Erste-Schritte-Handbuch können unter https://www.autodesk.com/raster_design_getting_started_guide heruntergeladen werden. Laden Sie die Beispieldateien herunter und extrahieren Sie sie auf Ihrer Arbeitsstation, um sie in dieser Übung zu verwenden.
So führen Sie Vektor- mit Rasterdaten zusammen
1

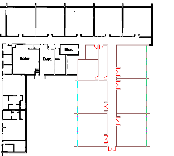
Öffnen Sie die Beispieldatei LiveView_Merge.dwg.

Sie sehen die Zeichnung einer Schule. Die weißen Rasterdaten geben das ursprüngliche Gebäude und die farbigen Vektordaten die zusätzlichen Klassenzimmer an.

2 Klicken Sie auf RasterZusammenführenRasterstifte konfigurieren, um das Dialogfeld Rasterstifteinstellungen zu öffnen.
3

Wählen Sie die rote Stiftfarbe, legen Sie die Stiftbreite auf 1 Pixel fest, und klicken Sie auf OK.

Bei dieser Einstellung werden die Türen mit dünneren Rasterlinien gezeichnet als die Wände.

4

Klicken Sie auf RasterZusammenführenVektor mit Raster. Wählen Sie den Vektorblock der neuen Klassenzimmer aus, indem Sie einen Rahmen um ihn herum zeichnen, und klicken Sie mit der rechten Maustaste, um die Auswahl aufzuheben. Drücken Sie die Eingabetaste, um die Vorgabeeinstellung zum Löschen der Vektoren nach dem Zusammenführen zu übernehmen.

Die Vektordaten werden mit den Rasterdaten zusammengeführt.