Übung B1: Kopieren von Rasterobjekten mithilfe von Regionen-Objekten

In dieser Übung überprüfen Sie die REM-Einstellungen, definieren REM-Regionen-Objekte und kopieren Rasterobjekte aus einem Bild in ein anderes.

Regionen-Objekte können in bitonalen Bildern sowie in Graustufen- und Farbbildern definiert werden.

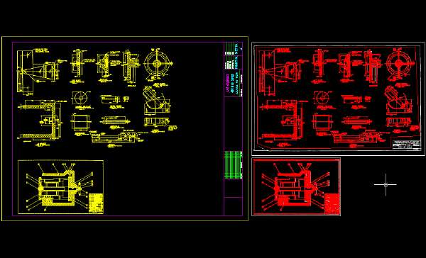
In dieser Übung arbeiten Sie mit einer Zeichnung, die zwei bitonale Bilder enthält, die aus technischen Zeichnungen eingescannt wurden:

Mit REM-Befehlen wählen Sie in den einzelnen Bildern Objekte aus und kopieren diese anschließend in ein leeres Bild, das bereits in der Zeichnung vorhanden ist. In folgenden Übungen ändern Sie diese Objekte mit REM-Befehlen.

Verwandte Übungen

Stellen Sie vor dem Ausführen dieser Übung sicher, dass die AutoCAD Raster Design toolset-Optionen entsprechend der Beschreibung in Übung Übung A1: Festlegen von AutoCAD Raster Design Toolset-Optionen festgelegt sind.

Übung

  1. Öffnen Sie im Ordner \Tutorial3 die Zeichnung REM_02.dwg.

    Überprüfen der REM-Einstellungen

  2. Um das Dialogfeld Raster Design-Optionen zu öffnen, klicken Sie auf RasterOptionen, oder
  3. Klicken Sie auf die Registerkarte REM, um sicherzustellen, dass als Farbe für REM-Objekte Rot ausgewählt ist.
  4. Klicken Sie auf die Registerkarte Rasterobjekterkennung, und stellen Sie sicher, dass die folgenden Einstellungen festgelegt sind:
    • Max. Sprunglänge 10.
    • Raster-Auswahlschwerpunkt verwenden ist aktiviert.
    • Weite 4.
    • Gleittoleranz 2.
  5. Klicken Sie auf OK.
  6. Klicken Sie mit der rechten Maustaste auf den AutoCAD-Werkzeugkasten oder einen beliebigen geöffneten AutoCAD Raster Design toolset-Werkzeugkasten. Klicken Sie dann auf REM-Werkzeugkasten (Rasterobjektbearbeitung), um ihn zu öffnen.
  7. Um den Werkzeugbereich Bild-Manager anzuzeigen, klicken Sie auf RasterVerwalten, und Klicken Sie auf die Ansicht Bildeinfügungen.
  8. Klicken Sie neben REM_02.dwg auf das Pluszeichen (+), klicken Sie mit der rechten Maustaste auf Mech_02a, und wählen Sie die Option Zoomen auf, um dieses Bild der 13 Detailzeichnungen anzuzeigen.

    Erstellen eines polygonalen Regionen-Objekts

  9. Klicken Sie im Werkzeugkasten Rasterobjektbearbeitung auf Polygonale Region .
  10. Zeichnen Sie ein Polygon, das alle Detailzeichnungen und ihre Beschriftungen enthält, einschließlich des Schriftfelds in der Ecke unten rechts, und drücken Sie die EINGABETASTE.

    Das Polygon und alle seine Objekte werden nun rot dargestellt, was darauf hinweist, dass sie als Teil des REM-Regionen-Objekts eingefangen wurden.

    Verfeinern des Regionen-Objekts

  11. Klicken Sie auf die Polygonumgrenzung, um das REM-Regionen-Objekt auszuwählen.
  12. Klicken Sie mit der rechten Maustaste, und wählen Sie Verfeinerungsmodus. Nur die Umgrenzung der Region wird markiert.
  13. Zoomen Sie transparent auf die untere rechte Ecke des Bilds.
  14. Wählen Sie die Umgrenzung der Region. Wählen Sie den Mittelpunktgriff im Schriftfeld, und ziehen Sie den Griff so, dass sich das Schriftfeld außerhalb des Regionen-Objekts befindet.

    Im folgenden Beispiel wird gezeigt, wie das Bild nach dem Verfeinern des Regionen-Objekts durch Ausschluss des Schriftfelds aussehen sollte.

  15. Klicken Sie mit der rechten Maustaste, und klicken Sie im Kontextmenü auf Verfeinerungsmodus. Der Verfeinerungsmodus wird deaktiviert.

    Kopieren des Regionen-Objekts in das leere Bild

  16. Zoomen Sie auf die Zeichnungsgrenzen.
  17. Verwenden Sie den Befehl KOPIEREN, um das Regionen-Objekt in die obere linke Ecke des leeren Bilds zu kopieren.

    Erstellen eines rechteckigen Regionen-Objekts

  18. Wählen Sie im Bild-Manager Mech_02b, klicken Sie mit der rechten Maustaste, und wählen Sie die Option Zoomen auf, um dieses Bild anzuzeigen.
  19. Klicken Sie im Werkzeugkasten Rasterobjektbearbeitung auf Rechteckige Region.
  20. Zeichnen Sie ein Rechteck, das alle Objekte des Bilds umfasst, einschließlich des Schriftfelds und des Rahmens.

    Das Rechteck und alle seine Objekte werden nun rot dargestellt, was darauf hinweist, dass sie als Teil des REM-Regionen-Objekts eingeschlossen wurden.

    Kopieren des Regionen-Objekts

  21. Zoomen Sie auf die Zeichnungsgrenzen.
  22. Verwenden Sie KOPIEREN, um das Regionen-Objekt in die untere linke Ecke des Bilds zu kopieren, das das andere Regionen-Objekt enthält.

    Zusammenführen der Regionen-Objekte im Bild

  23. Wählen Sie die beiden Regionen-Objekte aus, klicken Sie mit der rechten Maustaste, und wählen Sie Mit Rasterbild zusammenführen.

    Nachdem Sie die Regionen-Objekte im Bild zusammengeführt haben, werden die Objekte nicht mehr rot dargestellt, da es sich nicht länger um Regionen-Objekte handelt. Die Objekte in den ursprünglichen Bildern sind jedoch weiterhin als Regionen-Objekte definiert.

  24. Klicken Sie mit der rechten Maustaste, und wählen Sie aus dem Kontextmenü REMAlle löschen.

    Die REM-Regionen-Objekte sind in den ursprünglichen Bildern nicht mehr definiert. In einem echten Projekt könnten Sie an dieser Stelle das neue Bild (Mech_new_02) speichern und die Quellbilder von der Zeichnung trennen.

  25. Schließen Sie die Zeichnung, ohne die Änderungen zu speichern.