Erstellen Sie Detailansichten, um bestimmten Teilen des Modells weitere Informationen hinzuzufügen.
Registerkarte Ansicht Gruppe Erstellen (Detailausschnitt)
Registerkarte Ansicht Gruppe Erstellen (Schnitt)
Themen in diesem Abschnitt
Detailansichten
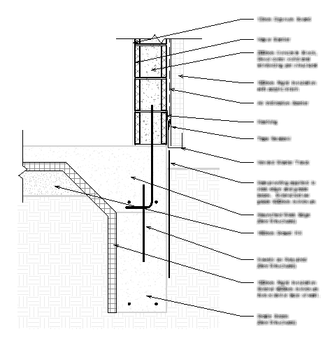
Eine Detailansicht ist eine Ansicht eines Modells, die entweder als Detailausschnitt oder Schnitt in anderen Ansichten angezeigt wird. In Ansichten dieser Art wird das Modell meist in einem detaillierteren Maßstab als in der übergeordneten Ansicht dargestellt.
Referenzieren einer Detailausschnittsansicht
Wenn Sie einen Detailausschnitt aus einer Schnittansicht, Draufsicht oder Ansicht erstellen, können Sie die Ansicht mit einem bestimmten Bereich des Gebäudemodells verknüpfen.
Typeneigenschaften für Detailansichten
Zu jeder Detailansicht stehen Typeneigenschaften für Schnitt- und Detailausschnittsbeschriftungen sowie Referenzbeschriftungen zur Verfügung.
Erstellen einer Detailansicht
Sie können einen Detailausschnitt aus einer Draufsicht, einer Schnittansicht oder einer Ansicht erstellen und dann unter Verwendung der Modellgeometrie als Grundlage Detailbauteile hinzufügen. Wenn Sie einen Detailausschnitt oder ein Schnittdetail erstellen, können Sie andere Detail- oder Zeichenansichten im Modell referenzieren.
Duplizieren einer Detailansicht
Beim Duplizieren einer Ansicht können Sie festlegen, ob sowohl die Modell- als auch die Detailgeometrie in die neue Ansicht kopiert werden sollen.
Video: Ansichten duplizieren
Erstellt Duplikate von Ansichten in Ihrem Modell, um verschiedene Arten von Informationen anzuzeigen.
Speichern von Ansichten in externen Projekten
Sie können eine Ansicht in einem externen Revit LT-Projekt speichern. Mit diesem Vorgang werden die Ansicht und alle darin sichtbaren Elemente (Modell- und ansichtsspezifische Elemente) in einer neuen Projektdatei gespeichert.
Exemplareigenschaften der Detailansicht
Sie können die Darstellung von Detailansichtsbeschriftungen steuern, indem Sie Exemplareigenschaften der Ansicht bearbeiten.