Info zum Familieneditor

Der Familieneditor ist ein grafischer Bearbeitungsmodus, mit dem Sie Familien erstellen und ändern können, um sie später in Projekten zu nutzen.

Wenn Sie mit dem Erstellen einer Familie beginnen, öffnen Sie eine Vorlage zur Verwendung im Editor. Die Vorlage kann mehrere Ansichten enthalten, wie beispielsweise Grundrisse und Draufsichten. Der Familieneditor hat dasselbe Look and Feel wie die Projektumgebung in Revit LT, es stehen jedoch andere Werkzeuge zur Verfügung. Die Verfügbarkeit von Werkzeugen hängt vom Typ der Familie ab, die Sie bearbeiten.

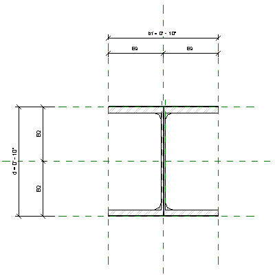
Die folgende Abbildung zeigt eine Draufsicht einer Stützenfamilie mit breitem Flansch im Familieneditor. Die grüne gestrichelten Referenzebenen werden verwendet, um Abhängigkeiten für die Geometrie der Familie festzulegen.