Learn how to display the final reinforcement in the view and in tabular form.

The layout is divided in four parts: RC Component Inspector, Slab - Reinforcement view (top and bottom), Reinforcing Bars dialog, and Reinforcement table.
(Analysis
Calculations).
The Calculations dialog opens.
The top reinforcement displays in the + tab.
tab to display the bottom reinforcement.


The row is highlighted in black and the selected reinforcement displays in red in the view.

Reinforcement table (or Bar properties). 
(Results
Drawings).
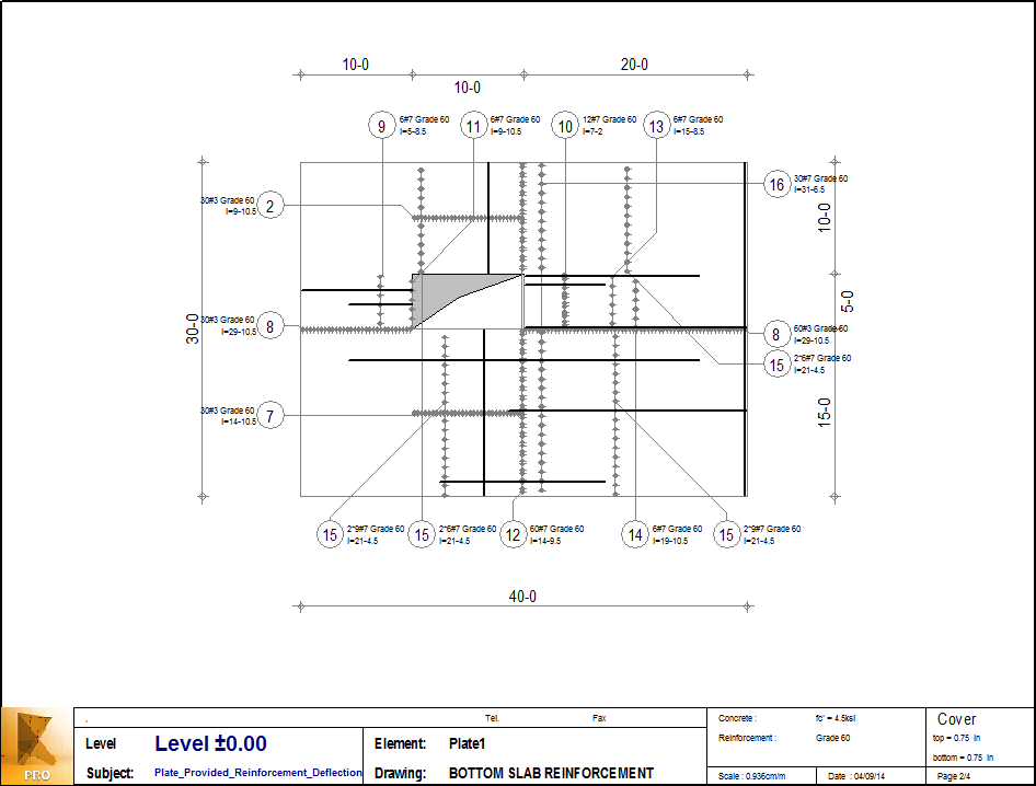
The Final Drawings layout opens. The layout is divided in two parts: RC Component Inspector and Drawing view.
Next Drawing, or click the right arrow to display the next drawing.


(View
Drawings Components). For more information, see Final Drawings - Description. Click here to go to the Summary.