In this exercise, you add dimensions to the building model to dimension the footprint of the main building. 
  
| | Category | New Users |  | Time Required | 15 minutes |  | Tutorial Files Used | GSG_11_dimensions.rvt | 
 | 
Before you begin, download the GSG_11_dimensions.rvt file. 
		Download this zip file (if you have not already downloaded the exercise files for the tutorials.) 
	 
 
		Objectives 
	 
- Dimension the width of the building. 
		
- Use the intersecting grids option with an alined dimension to automatically include grid intersections when dimensioning exterior walls. 
		
- Use the Openings option with an aligned dimension to automatically include window openings when dimensioning the exterior wall. 
		
 Watch the video
 Watch the video 
	 
Add Dimensions
 
		 
		- Open project GSG_11_dimensions.rvt. 
		  
- Verify that the 01 - Store Floor floor plan is open. 
		  
- Click Annotate tab Dimension panel Dimension panel  (Aligned). (Aligned).
- On the Options Bar, select Wall Faces, and for Pick, select Individual References. 
		  
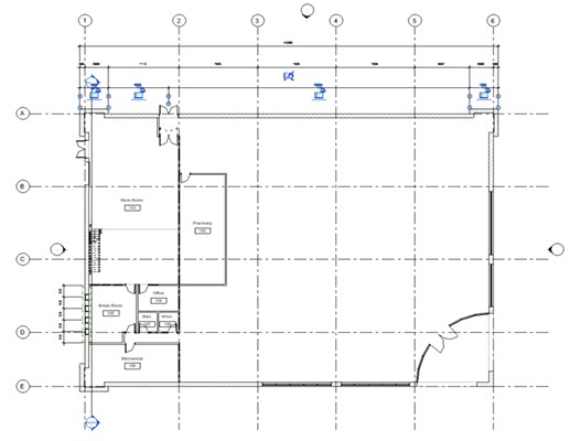
- Dimension the building width: 
			 - Click the exterior face of the west wall. 
				
- Click the exterior face of the east wall. 
				
- Move the cursor above the building, and click to place the dimension. 
				
 
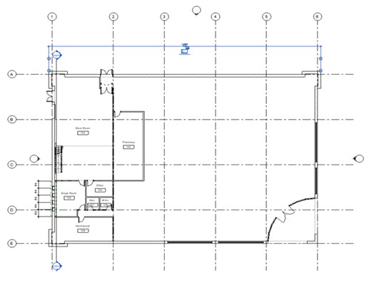
Dimension Grids
 
		 
		- On the Options Bar: 
			 - Click Annotate tab Dimension panel Dimension panel  (Aligned). (Aligned).
- For Pick, select Entire Walls. 
				
- Click Options. 
				
- In the Auto Dimension Options dialog, select Intersecting Grids, and click OK. 
				
 
- Dimension the window openings and intersections for the south wall: 
			 - Click the inset north exterior wall. 
				
- Click the east and west walls. 
				
- Move the cursor above the building, and click to place the dimension. 
				
 
- Click Modify. 
		  
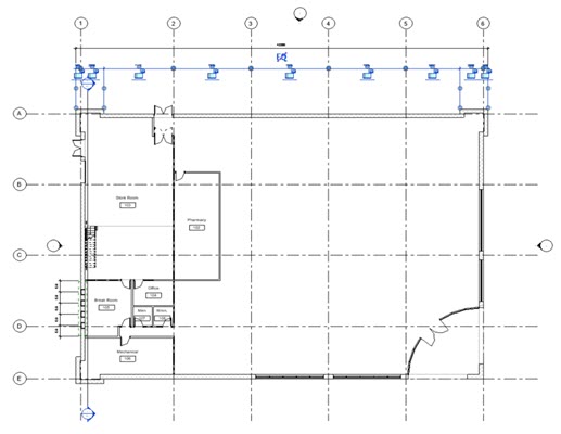
Dimension Openings
 
		 
		- On the Options Bar: 
			 - Click Annotate tab Dimension panel Dimension panel  (Aligned). (Aligned).
- For Pick, select Entire Walls. 
				
- Click Options. 
				
- In the Auto Dimension Options dialog, select Openings, and click OK. 
				
 
- Dimension the window openings and intersections for the south wall: 
			 - Click the inset north exterior wall. 
				
- Click the east and west walls. 
				
- Move the cursor above the building, and click to place the dimension. 
				
 
- Click Modify. 
		  
 
		 
		  Part 12: Adding Notes