Learn how to place reinforcement and mounting parts in precast double walls.
After you create the double wall precast assemblies using the Split command, you can add reinforcement to selected assemblies. The options for adding reinforcement are similar to the ones for the other supported precast elements.
The Reinforcement command adds all the required elements in the double wall. During this process, the reinforcement is created first, after which the lattice girders are calculated so that they are positioned laying on the bars along the wall and equally spaced from the centroid of the wall. The lifters and bushing are added taking into account the actual position of the lattice girders so that the lifters are at the position of the lattice girders. The bushing is offset from the lattice girders by a value specified in the Configuration dialog.

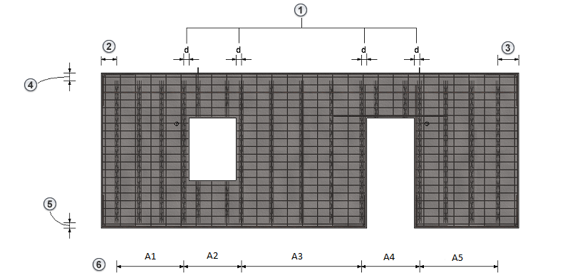
You can define the edge reinforcement the same as for solid walls and. It is based on the contour of each double wall shell. The following rules apply when placing edge reinforcement:

You can place reinforcement and mounting parts on each shell manually or by using Dynamo. Next, use the Mounting Parts command to automatically add the reinforcement and (or) mounting parts in the assembly. During this stage, all relevant data such as shell and mounting part side are written in the reinforcement and (or) mounting parts. Additionally, for rebar and fabric sheets, the actual weight is taken into account in the overall weight of the assembly when using the Mounting Parts command.