Part 11: Add Dimensions

In this exercise, you add dimensions to the building model to dimension the footprint of the main building.

Category New Users
Time Required 15 minutes
Tutorial Files Used GSG_11_dimensions.rvt

Before you begin, download the GSG_11_dimensions.rvt file. Download this zip file (if you have not already downloaded the exercise files for the tutorials.)

Objectives

Watch the video

Add Dimensions

  1. Open project GSG_11_dimensions.rvt.
  2. Verify that the 01 - Store Floor floor plan is open.
  3. Click Annotate tabDimension panel (Aligned).
  4. On the Options Bar, select Wall Faces, and for Pick, select Individual References.
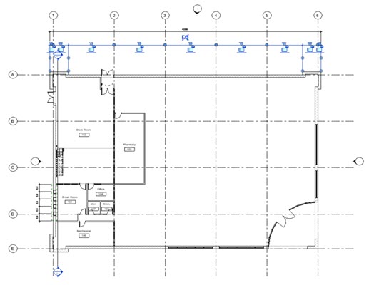
  5. Dimension the building width:
    • Click the exterior face of the west wall.
    • Click the exterior face of the east wall.
    • Move the cursor above the building, and click to place the dimension.

Dimension Grids

  1. On the Options Bar:
    • Click Annotate tabDimension panel (Aligned).
    • For Pick, select Entire Walls.
    • Click Options.
    • In the Auto Dimension Options dialog, select Intersecting Grids, and click OK.
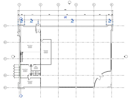
  2. Dimension the window openings and intersections for the south wall:
    • Click the inset north exterior wall.
    • Click the east and west walls.
    • Move the cursor above the building, and click to place the dimension.
  3. Click Modify.

Dimension Openings

  1. On the Options Bar:
    • Click Annotate tabDimension panel (Aligned).
    • For Pick, select Entire Walls.
    • Click Options.
    • In the Auto Dimension Options dialog, select Openings, and click OK.
  2. Dimension the window openings and intersections for the south wall:
    • Click the inset north exterior wall.
    • Click the east and west walls.
    • Move the cursor above the building, and click to place the dimension.
  3. Click Modify.

Part 12: Adding Notes