Part 10: Create Views

In this exercise, you create a section view, a callout view of the exterior wall, and a detail callout of the parapet.

Category New Users
Time Required 10 minutes
Tutorial Files Used GSG_10_views.rvt

Before you begin, download the GSG_10_views.rvt file. Download this zip file (if you have not already downloaded the exercise files for the tutorials.)

Objectives

Watch the video

Create a Section View

  1. Open project GSG_10_views.rvt.
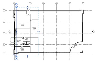
  2. In the Project Browser, under Floor Plans, double-click 01 - Store Floor.
  3. Click View tabCreate panel (Section).
  4. Click outside the south wall of the building near grid 1, move the cursor up until it is outside the building on the north side, and click to place a section line approximately through the middle of the stairs, as shown.
  5. Click the flip control () to flip the section so it includes the store room #103.
  6. Click the cycle control () on the top twice, to cycle through the section tail options and display the section head on the top and bottom.
  7. Press Esc.
  8. Double-click the section head to open the section view.
  9. On the View Control Bar, click (Hide Crop Region).

Create Callout Views

  1. Click View tabCreate panel (Callout).
  2. In the Type Selector, under Section, click Wall Section.
  3. To draw a callout around the entire north (left in the section view) wall of the building, from the foundation to the roof, click to define the lower-left corner and click to define the upper-right corner of the box.
  4. Select the callout, and use the Drag Head control to drag the callout head so it displays to the upper-left of the callout.
  5. Press Esc.
  6. Double-click the callout head to open the callout view.
  7. On the View Control Bar, click (Hide Crop Region).
  8. On the View Control Bar, change the detail level to Medium.
  9. On the Create panel, click (Callout).
  10. In the Type Selector, under Detail View, click Detail.
  11. Draw a callout around the wall parapet.
  12. Reposition the callout head to the upper-left position.
  13. Double-click the callout head to open the detail view.
  14. On the View Control Bar, click (Hide Crop Region).

Part 11: Adding Dimensions