Part 6: Place Doors

In this exercise, you load door types into the project, and then add interior and exterior doors to the model.

Category New Users
Time Required 10 minutes
Tutorial Files Used GSG_06_place_doors.rvt, M_Door-Exterior-Double.rfa, M_Door-Overhead-Sectional.rfa, M_Door-Passage-Double-Flush-Dbl_Acting.rfa, M_Door-Passage-Single-Flush.rfa

Before you begin, download the GSG_06_place_doors.rvt, M_Door-Exterior-Double.rvt, M_Door-Overhead-Sectional, M_Door-Passage-Double-Flush-Dbl_Acting, and M_Door-Passage-Single-Flush tutorial files. Download this zip file (if you have not already downloaded the exercise files for the tutorials.)

Objectives

Watch the video

Load Families

  1. Open project GSG_06_place_doors.rvt.
  2. Click Insert tabLoad from Library panel (Load Family).
  3. In the Load Family dialog, navigate to the folder where you saved the family files for the exercise.
  4. While pressing Ctrl, select the following files, and click Open.
    • GSG_06_M_Door-Exterior-Double.rfa
    • GSG_06_M_Door-Overhead-Sectional.rfa
    • GSG_06_M_Door-Passage-Double-Flush-Dbl_Acting.rfa
    • GSG_06_M_Door-Passage-Single-Flush.rfa

Place Doors

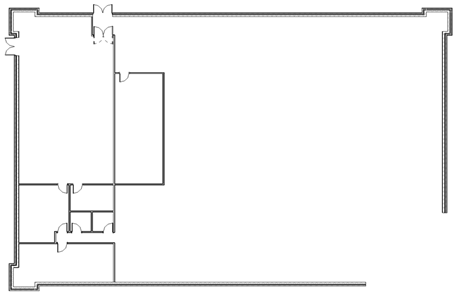
  1. In the Project Browser, under Floor Plans, double-click 01 - Store Floor.
  2. Click Architecture tabBuild panel (Door).
  3. In the Type Selector, verify that M_Door-Passage-Double-Flush-Dbl_Acting is selected.
  4. Click to place a door at the entrance to the store room, as shown.
  5. In the Type Selector, select M_Door-Exterior-Double 1800 x 2000.
  6. Click to place doors in the lower exterior walls, as shown.
  7. In the Type Selector, select M_Door-Passage-Single-Flush 900 x 200.
  8. Place additional doors as shown.
    Note: To change the swing direction or hinge side as you place the door, press the space bar. To change the direction after a door is placed, click the flip controls.
  9. Use the Type Selector to choose the M_Door_Overhead Sectional Door and place the west wall of the store room.

Part 7: Placing Windows