Esercizio pratico: unione di vettori

In questo esercizio si aggiornerà un disegno e si uniranno nuovi dati vettoriali a dati raster già esistenti.

Nota: I file di esempio della Guida introduttiva possono essere scaricati da https://www.autodesk.com/raster_design_getting_started_guide. Scaricare ed estrarre i file di esempio nella workstation per utilizzarli in questo esercizio.
Per unire vettori a dati raster
1

Aprire il file di esempio LiveView_Merge.dwg.

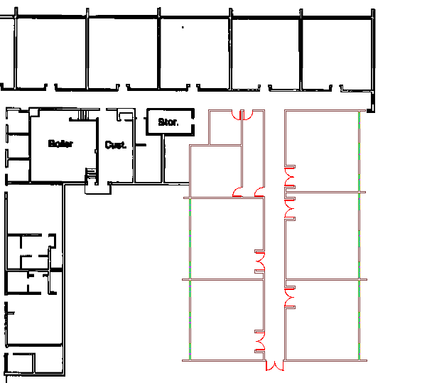
Viene visualizzato il disegno di una scuola. I dati raster bianchi indicano l'edificio originario, mentre i dati vettoriali a colori indicano le aule aggiuntive.

2 Fare clic sul menu RasterUnisciConfigura penne raster per aprire la finestra di dialogo Impostazioni della penna raster.
3

Selezionare il colore della penna rossa, impostarne lo spessore a 1 pixel, quindi fare clic su OK.

Con questa impostazione le porte verranno disegnate con linee raster più sottili rispetto a quelle delle pareti.

4

Fare clic sul menu RasterUnisciVettore in raster. Selezionare il blocco vettoriale delle nuove aule mediante un riquadro, quindi fare clic con il pulsante destro del mouse per concludere la selezione. Premere INVIO per accettare l'impostazione di default per l'eliminazione dei vettori dopo l'unione.

I dati vettoriali vengono uniti ai dati raster.