Esercizio pratico: rimozione di imperfezioni da un'immagine

In questo esercizio verrà corretto un disegno eliminandone le imperfezioni.

Nota: I file di esempio della Guida introduttiva possono essere scaricati da https://www.autodesk.com/raster_design_getting_started_guide. Scaricare ed estrarre i file di esempio nella workstation per utilizzarli in questo esercizio.
Per rimuovere imperfezioni da un'immagine
1

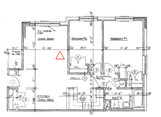
Aprire il file di esempio LiveView_Clean.dwg.

Questo disegno contiene un triangolo vettoriale rosso che racchiude una delle più grandi imperfezioni dell'immagine.

2 Ingrandire l'immagine per visualizzare in modo più chiaro l'imperfezione all'interno del triangolo rosso.
3 Fare clic sul menu RasterCorreggiRimuovi imperfezioni.

Premere Invio per elaborare l'intera immagine.

4 Fare clic sull'imperfezione all'interno del triangolo rosso.

Il sistema riporta la dimensione dell'imperfezione (0,025 unità di disegno o 5 pixel) ed evidenzia tutte le imperfezioni di dimensione inferiore a quella riportata per l'eventuale rimozione.

5 Eseguire la panoramica e lo zoom dell'immagine per esaminare le imperfezioni. Fare clic per deselezionare eventuali imperfezioni che non si desidera eliminare: ad esempio il punto di A.C. SLEEVE in alto a sinistra.

Premere INVIO per rimuovere le imperfezioni evidenziate.

6 In alto a sinistra si noteranno alcune imperfezioni che non sono state eliminate, in quanto sono di dimensioni superiori rispetto a quella contenuta nel triangolo rosso. Queste imperfezioni possono essere eliminate manualmente.