In questo esercizio si lavora su diversi livelli per aggiungere muri esterni, muri interni e un corridoio al progetto.
|
Categoria
| Nuovi utenti
| |
Tempo richiesto
| 15 minuti
| |
File dell'esercitazione usati
| GSG_02_Create_Walls.rvt
|
|
Prima di iniziare, scaricare il file di dati GSG_02_Create_Walls.rvt. Scaricare questo file zip (se i file degli esercizi per le esercitazioni non sono già stati scaricati).
Obiettivi
- Aggiungere muri esterni disegnandoli con i punti selezionati.
- Inserimento di muri interni nel livello inferiore mediante lo strumento Muro.
- Creazione di un'apertura per un corridoio mediante lo strumento Riduci/Estendi.
Guarda il video
Modifica dei muri esterni
- Nella vista 3D, selezionare i muri in corrispondenza degli angoli dell'edificio. Utilizzare una finestra di selezione di contenimento e tenere premuto CTRL per aggiungere muri alla selezione.
- Nella tavolozza Proprietà, in Vincolo di base, selezionare 03 - Upper Parapet e fare clic su Applica.
- Premere ESC per deselezionare i muri.
- Selezionare i due muri in corrispondenza dell'angolo anteriore destro dell'edificio. Nella tavolozza Proprietà, impostare Offset base su 4250 mm.
- Nel Selettore di tipo, modificare il tipo di muro in Exterior - Render on Brick on Block @ Entry.
Aggiunta di muri interni
- Nel Browser di progetto, in Piante dei pavimenti, fare doppio clic su 01 - Store Floor.
- Fare clic sulla scheda Architettura
gruppo Costruisci
(Muro).
- Nel Selettore di tipo, selezionare Interior - 138mm Partition (1- hr).
- Nella barra delle opzioni:
- In Altezza, selezionare 02 Lower Parapet.
- In Linea di ubicazione, selezionare Linea d'asse del muro.
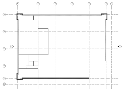
- Utilizzando l'immagine seguente come riferimento, inserire muri interni per la creazione di locali.
- Non è importante posizionarli con precisione.
- Quando si posizionano muri, potrebbe essere utile attivare o disattivare l'opzione Concatena. Concatena consente di posizionare più muri da un'estremità all'altra. Con l'opzione Concatena disattivata, devono essere specificati entrambi i punti finali di ogni muro. Esercitarsi con entrambe le impostazioni.
- Modificare i muri per creare un corridoio:
- Fare clic su
(Modifica) per terminare il comando.
Parte 3 - Creazione di un terreno e di una piattaforma di edificio