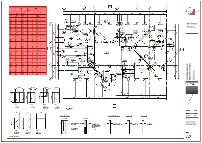
È possibile aggiungere abachi alle tavole, per corredare di ulteriori informazioni la documentazione del progetto.
In Revit LT, un'anteprima dell'abaco viene visualizzata in prossimità del cursore.

È ora possibile modificare l'abaco. Nella vista della tavola, fare clic con il pulsante destro del mouse sull'abaco, quindi scegliere Modifica abaco. Viene visualizzata la vista abaco nella quale è possibile modificare le celle dell'abaco. È inoltre possibile ruotare l'abaco nella tavola.