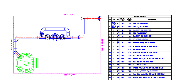
オルソ部品表を作成します。
次のプロンプトが表示されます。
ビューポートを選択: オルソ ビューポートを選択します。
最初のコーナーを指定: オルソ部品表の左上を指定します。
2 番目のコーナーを指定: 表の幅を指定します。 指定された高さは無視されます。