[専門分野]プロパティによって、専門分野固有の要素がビューでどのように表示されるかが決まります。
次の動作をコントロールするには、[専門分野]プロパティを使用します。
[専門分野]プロパティは、複数の専門分野を含む 1 つのモデルや、他の専門分野固有のモデルにリンクするモデルを使用している場合は、ビューに影響します。
また、このプロパティを使用して、プロジェクト ブラウザでビューを構成することができます。「[プロジェクト ブラウザ]でビューを整える」を参照してください。
ビューの[専門分野]プロパティを設定するには、プロジェクト ブラウザでビュー名を選択するか、ビューを開きます。[専門分野]プロパティは、プロパティ パレットの[グラフィックス]セクションに一覧表示されます。このリストから値を選択 します。
次の例は、次の項目が「Level 1」の断面図に設定されているモデルに基づいています。断面図では、緑色の矢印は対応する平面図ビューのビュー範囲全体を示します。青色の矢印はメイン ビューの範囲を示します。この場合、天井の上のプレナムにまで伸びており、「Level 1」の下にあります。オレンジ色の矢印はビューの奥行きを示します。(「ビュー範囲について」を参照してください)。下の平面図ビューの例では、わかりやすくするために、[詳細レベル]を[詳細]に設定して、空調、電気、配管要素をより詳細に表示しています。

必要な場合は、モデルをダウンロードすることで、[専門分野]プロパティがビューにどのような影響を及ぼすかを詳細に把握できます。view_discipline_example.rvt
既存のビューに基づいてビューを作成する場合、新しいビューは元のビューの専門分野を継承します。このルールは、吹き出し、断面図、立面図、複製ビューに適用されます。
たとえば、構造伏図ビュー([専門分野]プロパティが[構造]に設定されている伏図ビュー)を開き、平面図ビューの断面を作成するために、[断面]ツールを使用すると仮定します。新しい断面図ビューの[専門分野]プロパティも[構造]に設定されます。
ビュー タグ(断面図、立面図、吹き出しを示すために使用する記号)は、現在のビューの専門分野がターゲットとなるビューの専門分野と一致する場合にのみビューに表示されます。次の例を参照してください。
[専門分野]プロパティが[建築]に設定されている場合:
たとえば、ビューには意匠柱と構造柱の他に、空調、電気、配管要素が表示されます。
例: 建築平面図を以下に示します。
 壁の片側にケーブル ラックが見えます。壁の反対側では、意匠的なカバーによってケーブル ラックが隠されています。 
		
 断面図ビューのタグは、[専門分野]プロパティが[建築]に設定されていれば表示されます。その他の専門分野に割り当てられている場合、タグは表示されません。 
		
 
	 [専門分野]プロパティが[構造]に設定されている場合:
たとえば、ビューには意匠柱と構造柱の他に、空調、電気、配管要素が表示されます。
例: 構造伏図ビューを以下に示します。
 非構造壁は表示されません(上の建築平面と比較してください)。 
		
 [専門分野]プロパティが[構造]に設定されている断面図ビューのタグが表示されます。その他の専門分野に割り当てられている場合、タグは表示されません。 
		
 伏図のビュー範囲が「Level 1」の下に伸びているため、床の下の構造フレーム要素を表示するために隠線が表示されます。 
		

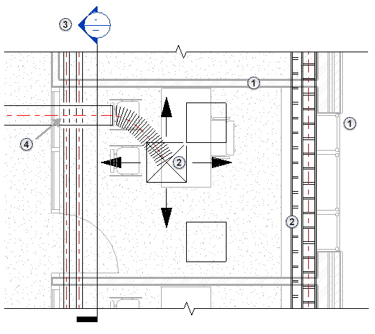
[専門分野]プロパティが[機械]、[電気]、[給排水衛生設備]に設定されている場合:
例: 空調平面図ビューを以下に示します。
 建物要素と構造要素(壁、ドア、窓、家具など)は、ビュー範囲に基づいてハーフトーンで表示されます。天井要素はビューに表示されません。 
		
 機械、電気、配管要素は[オブジェクト スタイル]の設定に従って表示されます。モデル内の実際の垂直位置に関係なく、これらの要素は他の要素の上に表示されます。 
		
 [専門分野]プロパティが[機械]に設定された断面図ビューのタグが表示されます。その他の専門分野に割り当てられている場合、タグは表示されません。 
		
 空調、電気、配管要素の隠線はビューに表示されます。 
		

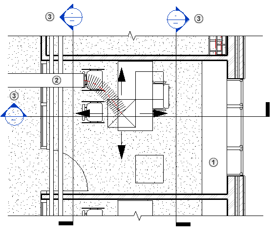
[専門分野]プロパティが[コーディネーション]に設定されている場合:
たとえば、ビューには意匠柱と構造柱の他に、空調、電気、配管要素が表示されます。
切断面が交差しているかどうかにかかわらず、ビュー範囲内にある一部の空調、電気、配管要素は表示されます。
さらに、切断面より上にある空調、電気、配管要素は他の要素の上に描画されます。これらの要素の中では、描画順はビューのレベルからの相対高さによって設定されます。これらの要素が切断面よりも下にある場合は、切断面からの距離の順に描画されます。
例: コーディネーション平面図ビューを以下に示します。
 ビュー範囲に応じて、すべての専門分野の要素がビューに表示されます。 
		
 空調、電気、配管要素が表示され、上記のルールに従って他の要素の上に表示されます。 
		
 すべての専門分野の断面図ビューのタグが表示されます。 
		
