詳細ビューは、他のビュー内にある吹き出しまたは断面詳細として表示されるモデルのビューです。このビューのタイプは、通常は親ビューよりも詳細なスケールでモデルを表示します。
詳細ビューは断面詳細または吹き出しとして作成することができます。吹き出しとして作成すると、詳細には断面図と吹き出しの注釈の両方が割り当てられます。言い換えれば、吹き出しとして作成される詳細ビューは、吹き出しビューの範囲に交差するビューにも断面図として表示されます。たとえば、壁の交差の詳細ビューを作成するには、吹き出しを使用します。この同じ吹き出しを、建築断面図ビュー全体の中に、断面図ビューとして表示できます。
詳細ビュー タグの表示は、親ビューのスケールに依存し、詳細ビューのトリミング境界が交差したり完全に親ビューの中に入っているかどうかによって変わります。詳細ビュー パラメータ[これより粗いスケールは非表示]で、他のビューで表示/非表示にする詳細のスケールを設定できます。たとえば、詳細タグが 1/4”=1’0” より粗いものを非表示にするように設定されている場合、1/8" = 1'-0" にスケールが設定されているものの、詳細タグは表示されません。
すべての詳細ビューは、図面が吹き出しか断面詳細かにかかわらず、[プロジェクト ブラウザ]には詳細ビューとして表示されます。
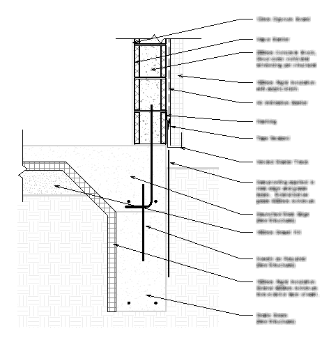
次の図は、アンダーレイ(ハーフトーン)のモデル ジオメトリで、壁の断面詳細の例を示しています。また、モデル要素上に描かれた追加の 2D 詳細コンポーネントを示しています。
