シートでビューの一部分を非表示にする方法について

ビューをシートに配置する場合、ビューの一部分を非表示にし、特定の領域に焦点を合わせることができます。

次の方法の 1 つまたは両方を使用します。

ヒント: ビューの元のバージョンを保持するには、最初に複製ビューを作成します。([プロジェクト ブラウザ]でビュー名を右クリックして、[ビューを複製] [複製]をクリックします。)複製ビューを開いて、必要に応じてトリミング領域とマスキング領域を適用します。次に、複製ビューをシートに配置します。

3D パース ビュー。[ビューをトリミング]パラメータは、パース ビューをシート上に配置するため、パース ビューで選択されている必要があります。シート上に配置すると、[ビューをトリミング]パラメータは、そのビューで変更できなくなります。同様に、シート上の平行な 3D ビューをパース ビューに変更した場合も、[ビューをトリミング]パラメータが自動的に有効になります。

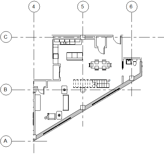
建築例

次の平面図では、長方形でないトリミング領域によって、アパートメント ユニットの右上と左上コーナーで、無関係なモデル ジオメトリが非表示になります。