11부: 치수 추가

이 연습에서는 건물 모델에 치수를 추가하여 주 건물의 외곽설정에 치수를 기입합니다.

카테고리 새 사용자
소요 시간 15분
사용되는 튜토리얼 파일 GSG_11_dimensions.rvt

시작하기 전에 GSG_11_dimensions.rvt 파일을 다운로드합니다. 튜토리얼용 연습 파일을 아직 다운로드하지 않은 경우 이 zip 파일을 다운로드합니다.

목표

비디오 보기

치수 추가

  1. GSG_11_dimensions.rvt 프로젝트를 엽니다.
  2. 01 - 상점 바닥 평면도가 열려 있는지 확인합니다.
  3. 주석 탭치수 패널(정렬)을 클릭합니다.
  4. 옵션 막대에서 벽 면을 선택한 다음 선택에서 개별 참조를 선택합니다.
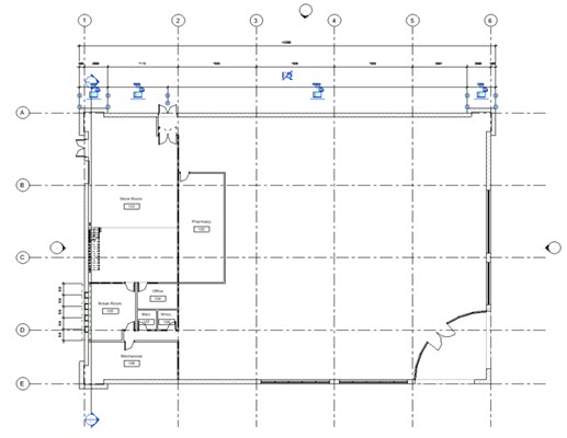
  5. 건물 폭 치수를 기입합니다.
    • 서쪽 벽의 외부 면을 클릭합니다.
    • 동쪽 벽의 외부 면을 클릭합니다.
    • 커서를 건물 위에 올려놓은 후 클릭하여 치수를 배치합니다.

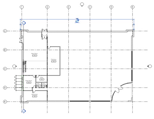
그리드에 치수 기입

  1. 옵션 막대에서 다음을 수행합니다.
    • 주석 탭치수 패널(정렬)을 클릭합니다.
    • 선택에서 전체 벽을 선택합니다.
    • 옵션을 클릭합니다.
    • 자동 치수 옵션 대화상자에서 교차 그리드를 선택하고 확인을 클릭합니다.
  2. 남쪽 벽의 창 개구부 및 교차점의 치수를 기입합니다.
    • 인세트 북쪽 외부 벽을 클릭합니다.
    • 동쪽 및 서쪽 벽을 클릭합니다.
    • 커서를 건물 위에 올려놓은 후 클릭하여 치수를 배치합니다.
  3. 수정을 클릭합니다.

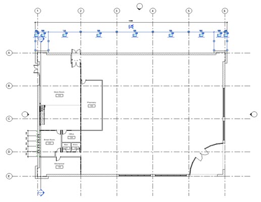
개구부에 치수 기입

  1. 옵션 막대에서 다음을 수행합니다.
    • 주석 탭치수 패널(정렬)을 클릭합니다.
    • 선택에서 전체 벽을 선택합니다.
    • 옵션을 클릭합니다.
    • 자동 치수 옵션 대화상자에서 개구부를 선택하고 확인을 클릭합니다.
  2. 남쪽 벽의 창 개구부 및 교차점의 치수를 기입합니다.
    • 인세트 북쪽 외부 벽을 클릭합니다.
    • 동쪽 및 서쪽 벽을 클릭합니다.
    • 커서를 건물 위에 올려놓은 후 클릭하여 치수를 배치합니다.
  3. 수정을 클릭합니다.

12부: 메모 추가