여러 광원 장치가 수직 벽에 장착되어 있습니다.


벽 장착형 시뮬레이션 구성은 표면 마운트 및 매입형 조명 구성에 대한 UL1598 테스트 절차에 제공된 지침을 기반으로 합니다. 자연 대류 및 온도 분포를 시뮬레이션하려면 공기 체적 내에 테스트 벽에 잠기도록 하십시오. 원하는 수준의 물리적 테스트 충실도에 따라 테스트 상자를 생성하는 몇 가지 방법이 있습니다. 벽 테스트 상자 모형의 상세 정보 수준에 따라 벽으로 전도되는 열의 양이 결정됩니다.
해석 영역은 테스트 설비의 구성에 따라 생성되어야 합니다. 각 구성에 대해 설비 주변의 공기 체적을 생성하여 자연 대류 및 열 전달로 인한 공기 이동을 시뮬레이션합니다.
다음 세 가지 방법으로 표면 벽 조명을 시뮬레이션할 수 있습니다.
단열(절연) 벽에 직접 설비를 부착합니다. 벽을 통해 열이 전도되지 않기 때문에 이 접근 방식은 열이 자연 대류를 통해서만 제거되는 "최악의" 상황을 시뮬레이션합니다. 이 구성을 사용하면 비교 연구를 위한 설계 옵션을 빠르게 시뮬레이션할 수 있습니다.
배선용 상자 또는 조명 마운팅 브래킷과 같은 세부 항목은 결과에 거의 영향을 미치지 않고 메쉬 크기 및 실행 시간만 늘리므로 포함하지 마십시오.

이 구성을 사용하면 열이 설비에서 전도되어 주변 공기로 대류될 수 있습니다. 이 설정은 실제 설치를 복제하지 않지만, 벽의 알 수 없는 열 싱크 성능을 제거하고 온도 조절실 내부의 UL 열 테스트 전략을 모방합니다.
벽 및 설비 주변의 공기 체적은 다음 치수를 연장합니다.
![]() | ![]() |
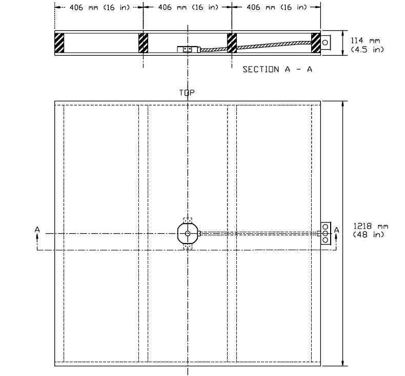
UL 테스트 설정은 경목 구성과 동일한 치수를 사용하지만 솔리드 목재 기준 대신 UL 테스트 상자를 사용합니다. 이 테스트 구성을 사용하여 실제 테스트를 매우 유사하게 모방할 수 있습니다.
UL 1598 사양에 지정된 대로 벽 테스트 설비를 생성합니다.

CAD에서 팔각형 배선용 상자를 단순화해서 모든 판금 세부 항목을 제거합니다.
공기 체적으로 테스트 설비를 감쌉니다. 테스트 설비 주변의 공기 체적은 다음 치수를 연장합니다.

해석 영역은 테스트 설비의 구성에 따라 생성되어야 합니다. 각 구성에 대해 설비 주변의 공기 체적을 생성하여 자연 대류 및 열 전달로 인한 공기 이동을 시뮬레이션합니다.
다음 두 가지 방법으로 간접 벽 조명을 시뮬레이션할 수 있습니다.
이 구성을 사용하면 설비에서 솔리드 공기로 열을 대류할 수 있습니다. 이 설정은 실제 설치를 복제하지 않지만, 벽의 알 수 없는 열 싱크 성능을 제거하고 온도 조절실 내부의 UL 열 테스트 전략을 모방합니다.
벽 및 설비 주변의 공기 체적은 다음 치수를 연장합니다.

동일한 치수를 사용하여 UL 테스트 설정을 경목 구성으로 시뮬레이션합니다. 이 테스트 구성을 사용하여 실제 테스트를 매우 유사하게 모방할 수 있습니다. 경목 기준 대신, UL 1598에 정의된 대로 UL 테스트 상자를 사용하십시오.
다음 이미지에서 D = 8.5인치(최소), F = 6인치(최소)입니다. (조명이 더 깊은 경우 F에 대해 더 큰 값을 사용하십시오) 위쪽 도면에는 평면도가 표시됩니다. 아래쪽 도면에는 측면도가 표시됩니다.

공기 체적으로 테스트 설비를 감쌉니다. 테스트 설비 주변의 공기 체적은 다음 치수를 연장합니다.

참조: UL 1598