W tej sekcji wyjaśniono znaczenie niektórych często używanych nazw części sieci rurociągów.
Terminy dotyczące struktur
-
Właz. Górna rzędna struktury włazu lub ścieku (skrzyżowania).
-
Rama. Podpora pokrywy włazu lub kratki ścieku. Górna rzędna ramy, pokrywy i kratki zwykle jest równa rzędnej części wewnętrznej (włazu).
-
Pokrywa. Górna pokrywa włazu służąca do wykonywania czynności serwisowych lub przeglądów. Pokrywy mają zwykle kształt kołowy, mogą mieć jednak również kształt trójkątny, tak aby po zdjęciu nie wpadały do włazu. Pokrywa jest osadzona w ramie i zwykle wykonana z żeliwa.
-
Kratka. Górny otwór ścieku, podzielony zazwyczaj na wiele mniejszych otworów umożliwiających wpływanie wód powierzchniowych do wnętrza struktury. Kratka jest osadzona w ramie i zwykle wykonana z żeliwa. Kratki mogą mieć różne kształty, ale zazwyczaj są kołowe lub kwadratowe.
-
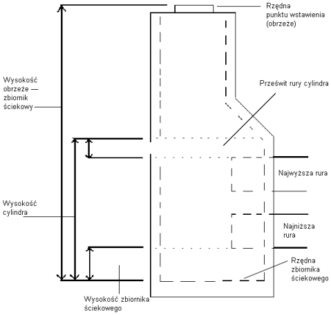
Zbiornik ściekowy i głębokość osadnika. Zbiornik ściekowy jest to dolna część komory we wnętrzu struktury skrzyżowania, takiej jak ściek. Zbiornik pełni niekiedy rolę osadnika wychwytującego zanieczyszczenia. Głębokość osadnika to odległość od najniższego punktu wewnętrznego struktury do najniższego dołu rury podłączonej do tej struktury. Głębokość osadnika konkretnego typu struktury może być różna w zależności od wymagań w konkretnym projekcie. Włazy zwykle mają zerową głębokość osadnika.
Na poniższej ilustracji przedstawiono rozmieszczenie części typowej struktury skrzyżowania.
Terminy dotyczące rur
-
Dół rury. Rzędna dołu rury. Inna nazwa: linia przepływu.
-
Góra rury lub najwyższy punkt wewnętrzny. Rzędna wewnętrznej strony górnej ściany rury.
-
Rzędna osi rury. Wartość rzędnej osi rury.
-
Pokrycie lub Głębokość. Oznacza głębokość materiału nad najwyższą zewnętrzną częścią rury.
-
Nachylenie. Nachylenie rury określa, jak stromo ona przebiega. W przypadku rur nachylenie zdefiniowane jest jako przyrost (lub spadek) na określonym odcinku, przy czym przyrost jest równy różnicy rzędnych na zadanym odcinku rury, którego długość mierzona jest w płaszczyźnie poziomej. Nachylenie jest zazwyczaj wyrażone w procentach. Przykładowo nachylenie rury równe 2% oznacza, że co każde 100 metrów długości poziomej rury rura obniża się o 2 metry. W oknach dialogowych i na etykietach w rysunku programu Autodesk Civil 3D nachylenie może być przedstawiane na różne sposoby. Dodatnie nachylenie rury wskazuje, że rura jest nachylona w dół w kierunku przepływu. Ujemne nachylenie rury to przeciwne nachylenie rury, które wskazuje, że rura jest nachylona w górę w kierunku przepływu.
