A propriedade Disciplina determina como os elementos específicos da disciplina são exibidos em uma vista.
Utilize a propriedade Disciplina para controlar os seguintes comportamentos:
A propriedade Disciplina afeta as vistas se você estiver usando um modelo único que incorpora múltiplas disciplinas, ou se o modelo se vincula com outros modelos específicos da disciplina.
Você também pode usar esta propriedade para organizar vistas no Navegador de projeto. Consulte Organizando vistas no Navegador de projeto.
Para definir a propriedade Disciplina para uma vista, selecione o nome da vista no Navegador de projeto ou abra a vista. Na paleta Propriedades, a propriedade Disciplina está listada na seção Gráficos. Selecione um valor na lista.
Os exemplos abaixo têm base em um modelo no qual o seguinte é uma planta de corte Nível 1. Na planta de corte, a seta verde indica a toda a faixa da vista para as vistas de planta correspondentes. A seta azul indica a faixa da vista principal, que foi estendida acima do forro para o plenum e abaixo do Nível 1. A seta laranja indica a profundidade da vista. (Consulte Sobre a faixa da vista). Nas vistas de planta de amostra abaixo, o nível de detalhe da vista está definido como Alta resolução para que os elementos mecânicos, elétricos e de tubulação sejam exibidos de forma mais completa para fins de ilustração.

Se desejado, é possível fazer o download do modelo para compreender melhor como a propriedade Disciplina afeta as vistas: view_discipline_example.rvt
Quando você cria uma vista com base em uma vista existente, a nova vista herda a disciplina da vista de origem. Esta regra se aplica às chamadas de detalhe, cortes, elevações e vistas duplicadas.
Por exemplo, suponha que você abra uma vista de planta estrutural (uma vista de planta, cuja propriedade Disciplina está definida como Estrutural), e utiliza a ferramenta Corte para criar um corte da vista de planta. A propriedade Disciplina da nova vista de corte também é definida como Estrutural.
Identificadores de vista (os símbolos usados para indicar cortes, elevações e chamadas de detalhe) são exibidos em uma vista somente se a disciplina da vista atual coincide com a disciplina da vista de destino. Consulte os exemplos abaixo.
Quando a propriedade Disciplina estiver definida como Arquitetura:
Por exemplo, a vista exibe colunas de arquitetura e pilares estruturais, bem como elementos mecânicos, elétricos e de tubulação.
Exemplos: na seguinte planta de piso de arquitetura:
Em um lado da parede, as bandejas de cabos são exibidas. No outro lado da parede, as bandejas de cabos estão obscurecidas por uma cobertura de arquitetura.
Um identificador é exibido para uma vista de corte cuja propriedade Disciplina estiver definida como Arquitetura. A planta não exibe identificadores para vistas atribuídas à outras disciplinas.
Quando a propriedade Disciplina estiver definida como Estrutural:
Por exemplo, a vista exibe colunas de arquitetura e pilares estruturais, bem como elementos mecânicos, elétricos e de tubulação.
Exemplos: na seguinte vista da planta estrutural:
As paredes não estruturais não são exibidas. (Compare com a planta de arquitetura mostrada acima).
Um identificador é exibido para uma vista de corte cuja propriedade Disciplina estiver definida como Estrutural. A planta não exibe identificadores para vistas atribuídas à outras disciplinas.
As linhas ocultas são exibidas para mostrar os elementos do framing estrutural abaixo do piso, porque a faixa da vista da planta se estende abaixo do Nível 1.

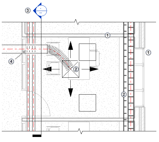
Quando a propriedade Disciplina estiver definida como Mecânica, Elétrica ou Hidráulica:
Exemplos: na seguinte vista de planta mecânica:
Os elementos de arquitetura e estruturais (paredes, portas, janelas, mobiliário) são exibidos em meio-tom com base na faixa da vista. Os elementos de forro não são exibidos na vista.
Os elementos mecânicos, elétricos e de tubulação são exibidos como definidos por Estilos de objeto. Estes elementos sobrepõem outros elementos, a despeito da sua localização vertical real no modelo.
Um identificador é exibido para uma vista de corte cuja propriedade Disciplina estiver definida como Mecânica. A planta não exibe identificadores para vistas atribuídas à outras disciplinas.
As linhas ocultas para elementos mecânicos, elétricos e de tubulação são exibidas na vista.

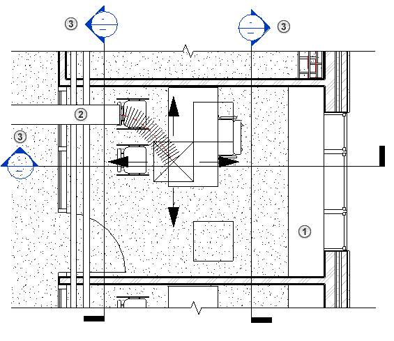
Quando a propriedade Disciplina estiver definida como Coordenação:
Por exemplo, a vista exibe colunas de arquitetura e pilares estruturais, bem como elementos mecânicos, elétricos e de tubulação.
Alguns elementos mecânicos, elétricos e de tubulação dentro da faixa de vista são exibidos, a despeito se o plano de corte efetua a intersecção com os mesmos.
Além disso, os elementos mecânicos, elétricos e de tubulação que estão acima do plano de corte são desenhados em cima de outros elementos. Entre estes elementos, sua ordem de desenho é definida por alturas relativas a partir do nível da vista. Quando estes elementos ocorrem abaixo do plano de corte, elas são desenhadas na ordem com relação a distância do plano de corte.
Exemplos: na seguinte vista de planta de coordenação:
Os elementos de todas as disciplinas são exibidos na vista de acordo com a faixa da vista.
Os elementos mecânicos, elétricos e de tubulação são exibidos, sobrepondo outros elementos de acordo com as regras descritas acima.
Os identificadores são exibidos para as vistas de corte para todas as disciplinas.
