Исключение определения материала из внешнего контура 2D-сечения

Используйте эту процедуру для исключения компонентов со специальным присвоенным определением материала из внешнего контура 2D разреза.

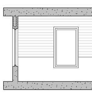
При формировании 2D разреза можно отобразить компонент под названием "Внешний контур". Внешний контур - это объединение всех граней объекта и разрезанных линией разреза, объединенных в один компонент единым образцом штриховки. Этот вид часто используется в 2D разрезе.

По умолчанию все компоненты, которым присвоены определения материалов, включены во внешний контур. Тем не менее, возможно, потребуется исключить конкретные определения материалов из внешнего контура, например, стекло.

Внешний контур 2D разреза с исключением стекла (слева)

  1. Выберите вкладку "Управление"панель "Стиль и отображение""Диспетчер стилей".

    Диспетчер стилей отображается с текущим чертежом, развернутым в виде дерева.

  2. Разверните опции "Универсальные объекты" и "Определения материалов".
  3. Выберите определение материала, которое требуется изменить.
  4. Перейдите на вкладку "Графические свойства".
  5. Выберите экранное представление, в котором следует отобразить внесенные изменения, и выберите "Переопределение стиля".

    Текущее экранное представление будет выделено.

  6. При необходимости нажмите .
  7. Перейдите на вкладку "Прочие".
  8. Выберите опцию "Исключить из внешнего контура 2D разреза".
  9. Нажмите "ОК".