В данном разделе приводятся пояснения для некоторых терминов, которые широко используются при упоминании элементов трубопроводных сетей.
Термины для колодцев
-
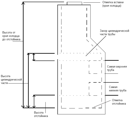
Край. Верхняя отметка люка или водосбора (соединительного элемента).
-
Рама. Опора для крышки люка или решетки водосбора. Верхняя отметка рамы, крышки и решетки обычно совпадает с отметкой точки вставки (края колодца).
-
Крышка. Крышка люка, используемая при его обслуживании или осмотре. Обычно крышки имеют круглую форму, но могут быть и треугольными, в результате чего они не могут упасть в люк, когда их снимают. Крышка опирается на раму и обычно изготавливается из чугуна.
-
Решетка. Верхний проем водосбора, в котором обычно имеется множество отверстий, позволяющих воде с поверхности попасть в колодец. Решетка опирается на раму и обычно изготавливается из чугуна. Решетки могут иметь разную форму, но обычно бывают круглыми или квадратными.
-
Отстойник и глубина отстойника. Отстойником называют нижнюю часть или камеру внутри соединительного элемента, например, водосбора. Область отстойника иногда используется как емкость для сбора осадка. Глубиной отстойника называют расстояние от самой нижней точки колодца до дна самой нижней из соединенных с ним труб. Глубина отстойника у определенного типа колодца может быть разной, в зависимости от проектных требований. Люки обычно не характеризуются глубиной отстойника.
На приведенной ниже иллюстрации показано расположение компонентов типового колодца-соединительного элемента.
Термины для труб
-
Дно. Высотная отметка нижней точки внутренней поверхности трубы. Также называется линией потока.
-
Гребень или верхняя часть трубы. Высотная отметка верхней точки внутренней поверхности трубы.
-
Отметка осевой линии трубы. Высотная отметка осевой линии трубы.
-
Покрытие или глубина залегания. Толщина материала над самой верхней точкой наружной поверхности трубы.
-
Уклон. Когда термин "уклон" используется для трубы, он является мерой крутизны. У труб уклон определяется подъемом (или спуском) на ветви, причем подъем - это разность в отметках по ветви участка трубы, длина которого измеряется по горизонтали. Уклон обычно измеряется в процентах. Например, уклон трубы 2 % означает, что на каждые 100 футов горизонтальной длины труба опускается на 2 фута. В Autodesk Civil 3D уклон может быть представлен в диалоговых окнах и в метках на чертеже разными способами. Положительный уклон трубы указывает на то, что труба наклонена вниз в направлении потока. Отрицательный уклон является обратным и указывает на то, что труба наклонена вверх в направлении потока.
