使用此对话框可以:
视图 - 从列表中选择视图,或在绘图中所需的视图内部单击。
整体尺寸 - 选择此选项可在已选视图中的项目上显示“X”和“Y”尺寸(如果这些尺寸尚不存在)。
原点 - 默认情况下,原点设置为视图原点。如果更改原点,则视图原点将更新为新位置。原点通过中心线来标记。
更改原点的步骤:
输入“X Y Z”坐标,或单击“位置”
按钮以打开“位置”对话框,您可以从中使用位置输入工具。
布局 - 您可以在以下位置为纵向尺寸的文本选择布局:
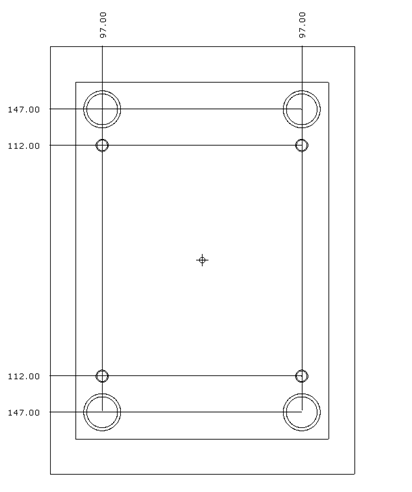
以下视图示例显示了使用“左上”布局选项的孔尺寸的布局。
尺寸位于模型最近侧 - 选择此选项可将尺寸文本定位在距离孔中心最近的一侧。对于包含数百个孔的板而言,此选项很有用,因为它可以提高绘图的清晰度。
取消选择此选项可将所有尺寸定位在一侧;尺寸文本的位置使用“左上”、“右上”、“左下”或“右下”来指定。
孔方向 - 选择要标注尺寸的孔:
预钻孔尺寸 - 选择此选项以允许标注了预钻孔尺寸的板。
如果尺寸紧靠在一起,则尺寸线将自动绘制为折线,以防止产生重叠。