多钢筋注释
使用单个注释标记多个钢筋和钢筋集。
视频:多钢筋注释
“注释”选项卡
“标记”面板
“多钢筋”
(对齐多钢筋注释)
“注释”选项卡
“标记”面板
“多钢筋”
(线性多钢筋注释)
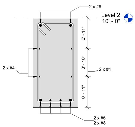
通过使用多钢筋注释,可以选择多个对齐的钢筋并显示钢筋参照之间的尺寸标注以及参数数据和相对于钢筋主体的位置。
本节内容
关于多钢筋注释
多钢筋注释可以通过单个注释标记多个钢筋和钢筋集。
视频:多钢筋注释
使用单个注释标记钢筋集或单个钢筋。
添加对齐的多钢筋注释
通过使用多钢筋注释,您可以选择多个对齐的钢筋并显示钢筋参照之间的尺寸标注以及参数数据。
添加线性多钢筋注释
可以通过多钢筋注释使用详细制造和构造注释标记钢筋集中的每个钢筋。
修改多钢筋注释
您可以像修改其他标记一样,修改多钢筋注释。
修改多钢筋注释的尺寸标注
在将多钢筋注释添加到视图时,可以调整尺寸标注来编辑或重新定位标注文字、或修改尺寸标注的显示。
多钢筋注释的类型属性
更改类型属性来调整多钢筋注释的显示样式。
父主题:
注释