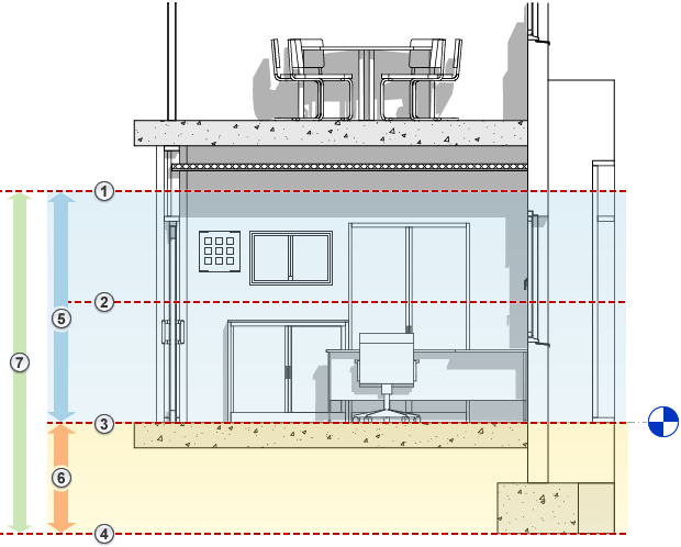
視圖範圍是一組水平平面,可控制平面視圖中物件的可見性和顯示。
每個平面視圖皆有稱為視圖範圍 (又稱可見範圍) 的性質。定義視圖範圍的水平平面是頂部、切割平面和底部。頂部和底部裁剪平面分別表示視圖範圍的最上方和最下方的部分。切割平面可決定在何種高度下,視圖中的某些元素會展示為切割。這三個平面用於定義視圖範圍的主要範圍。
視圖深度為主要範圍外的額外平面。變更視景深度可展示底部裁剪平面下的元素。依預設,視景深度與底部裁剪平面重合。
以下立面可展示平面視圖的視圖範圍
:頂部
、切割平面
、底部
、偏移 (從底部)
、主要範圍
和視景深度
。
右側的平面視圖會展示此視圖範圍的結果。
|
|
在平面視圖中,Revit 會使用下列規則顯示與切割平面相交的元素:
對於與切割平面相交的元素,其顯示的例外狀況包括以下所述:
6 英呎 (約 2 公尺) 是從邊界框的頂部測量到主視圖範圍的底部。例如,若建立牆的頂部在底部裁剪平面上方 6 英呎,則在切割平面處切割牆。如果牆頂少於 6 英呎,則整面牆 (包括與切割平面相交處) 會展示為投影。如果牆的「頂部約束」性質指定為「未連接」,則此為預設行為。如果牆的「頂部約束」性質指定為「已連接」,則切割平面位置永遠會用來定義牆是切割或投影。
秘訣:族群可以包括與切割平面相交的幾何圖形,允許幾何圖形在切割平面上方時可見。
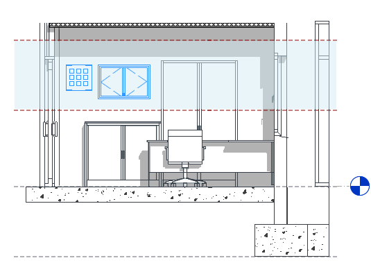
在以下立面中,藍色亮顯表示與切割平面相交的元素。
右側的平面視圖會展示以下內容:
使用切割線粗繪製的元素。(牆、門和窗)
使用投影線粗繪製 (因為其不可切割) 的元素 (櫥櫃)。
|
|
在平面視圖中,Revit 會使用元素品類的投影線粗繪製這些元素。
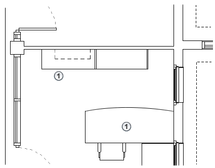
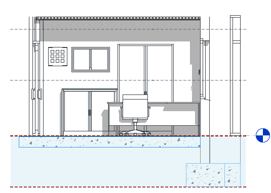
在以下立面中,藍色亮顯表示低於切割平面且高於底部裁剪平面的元素。
右側的平面視圖會展示以下內容:
使用投影線粗繪製 (因為其並未與切割平面相交) 的元素。(櫃櫥、書桌和椅子)
|
|
會使用 <超出> 線型式繪製視景深度範圍內的元素,不論元素品類如何,都是如此。
例外狀況:位於視圖範圍外的樓板、結構樓板、樓梯與樓梯把手彎子使用位於主要範圍底部下方 4 英呎 (大約 1.22 公尺) 的調整範圍。在此調整範圍內,會使用品類的投影線粗來繪製元素。若這些元素位於此調整範圍之外,但在視景深度範圍之內,則會使用 <超出> 線型式進行繪製。
例如,在以下立面中,藍色亮顯表示低於底部裁剪平面且位於視景深度範圍內的元素。
右側的平面視圖會展示以下內容:
使用 <超出> 線型式繪製的位於視景深度範圍內的元素 (基礎)。
使用其品類的投影線粗繪製 (因為其符合例外條件) 的元素。
|
|
除非這些元素的品類是窗、櫥櫃或一般模型,否則不會顯示在平面視圖中。會使用從上方檢視的投影線粗繪製這三個品類中的元素。
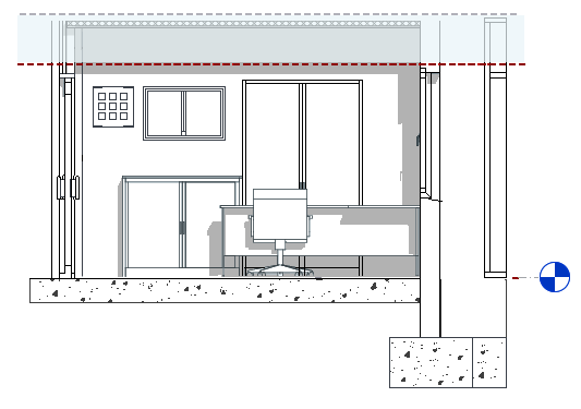
例如,在以下立面中,藍色亮顯表示介於視圖範圍頂部與切割平面之間的元素。
右側的平面視圖會展示以下內容:
使用投影線粗繪製的壁掛式櫥櫃。在此情況下,會在櫥櫃族群中定義投影線的虛線型式。
平面中未繪製 (因為其品類不是窗、櫥櫃或一般模型) 的牆燭臺 (照明品類)。
|
|
類似於平面視圖,反射天花板平面也有視圖範圍設定,但有一些差別。
