詳圖是在其他視圖中顯示為圖說或剖面的模型視圖。此類型的視圖表現的模型通常比父系視圖中模型的比例更為細緻。
可以將詳圖建立為剖面或圖說。建立為圖說的詳圖可以同時指定剖面和圖說註解。換句話說,製作成圖說的詳圖也可以在和圖說視圖範圍相交的視圖中展示為剖面。例如,您可以使用圖說文字來建立牆交點的詳圖。這一相同的圖說可在整個建築剖面視圖中顯示為剖面視圖。
詳圖標籤的可見性視父系視圖的比例而定,也根據詳圖的裁剪邊界是否和父系視圖的裁剪邊界相交,還是完全在父系視圖的裁剪邊界中。詳圖參數「比例粗糙程度超過下列值時隱藏」會建立比例,在其他視圖中用這個比例展示或隱藏詳圖。例如,如果詳圖標籤設定為在比 1/4"=1'0" 更粗糙的比例時隱藏,那麼比例設定為 1/8"=1'-0" 的視圖就不會展示詳圖標籤。
所有詳圖 (無論您是將其繪製為圖說或剖面) 在專案瀏覽器中都會展示為詳圖。
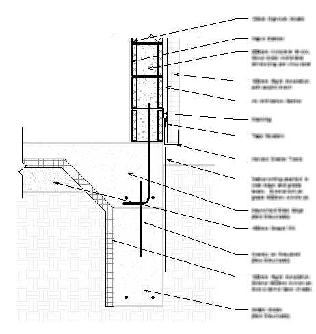
下列影像展示了「牆剖面詳圖」的範例,其中以模型幾何圖形作為底圖 (灰階),而在模型元素上繪製額外的 2D 詳圖元件。
