瞭解如何在預鑄雙牆中放置配筋和安裝配件。
使用 分割指令建立雙牆預鑄組合後,您可以在選取的組合中加入配筋。加入配筋的選項與其他受支援預鑄元素的選項類似。
「配筋」指令會在雙牆中加入所有需要的元素。此程序會先建立配筋,之後計算晶格大樑,然後將它們放在沿著牆的強化材料上,與牆的形心等距。程序會考慮晶格大樑的實際位置來加入斜頂出器和襯套,讓斜頂出器位於晶格大樑的位置。襯套會與晶格大樑偏移「規劃」對話方塊中指定的值。
晶格大樑是在
「區域配筋類型」 對話方塊的「桁架」頁籤中定義。
註: 在「配筋類型」選取「桁架」,就可以使用「桁架」頁籤。
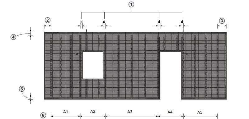
「桁架」頁籤的參數如下所述:
- 到開口的距離 d。
- 分佈起始偏移。
- 分佈結束偏移。
- 長度結束偏移。
- 長度起始偏移。
- 晶格大樑分佈 (A=面積)。
您可以像為實體牆一樣定義邊緣配筋。它是根據每個雙牆外殼的輪廓。放置邊緣配筋時,會套用以下規則:
- 層數設定為 1 - 邊緣配筋只會套用到第一個外殼。
- 層數設定為 2 - 邊緣配筋會套用到第一個和第二個外殼。
- 層數設定為 3 - 邊緣配筋會在第一個外殼中套用 3 層邊緣配筋,在第二個外殼中套用 1 層。
手動的配筋和安裝配件
您可以手動或使用 Dynamo 在每個外殼放置配筋和安裝配件。接著,使用安裝配件指令在組合中自動加入配筋和 (或) 安裝配件。在此階段期間,所有相關資料 (例如外殼和安裝配件側) 都會寫入配筋和 (或) 安裝配件。此外,如果是鋼筋和鋼筋網片材,使用「安裝配件」指令時,組合的整體重量會納入鋼筋和鋼筋網片材的實際重量。