V této části naleznete příklady různých pracovních postupů kótování montážních součástí v pohledech dílenského výkresu prefabrikátu.
Kóty všech montážních součástí stejné rodiny se umístí na jednu čáru, pokud jsou montážní součásti umístěny na stejné straně od hostitelského prvku. Referencí tohoto umístění je střed prvku. Všechny montážní součásti stejné rodiny, které jsou v horní části středu hostitelského prvku, budou kótovány v horní části prvku. Montážní součásti pod středem budou kótovány pod prvkem. Stejné pravidlo platí i pro vertikální kótovací čáry. Kótovací body na rozsazích hostitelského prvku se přidají na kótovací čáru kromě kótovacích bodů montážních součástí (jeden bod vlevo a vpravo nebo nahoře a dole).



panel Segmentace
(Rozdělit) rozdělte stěnu.
panel Přípoje
(Montážní součásti) přidejte kotevní desky do sestavy.
panel Výroba
(Dílenské výkresy) vytvořte pro sestavu dílenský výkres.

Podle názvu podkategorie by kótovací čáry měly být vytvořeny pouze při zobrazení kotevních desek shora (jak je zobrazeno v rodině). Pro stěnu v tomto příkladu, která je pouze v předním pohledu.


Nastavte podkategorii a parametr viditelnosti jako v prvním příkladu.
panel Segmentace
(Rozdělit) rozdělte stěnu.
panel Přípoje
(Montážní součásti) přidejte kotevní desky do sestavy.
panel Výroba
(Dílenské výkresy) vytvořte pro sestavu dílenský výkres.

panel Výroba
(Dílenské výkresy) vytvořte pro sestavu dílenský výkres.

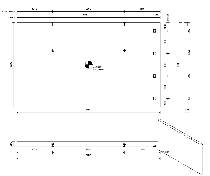
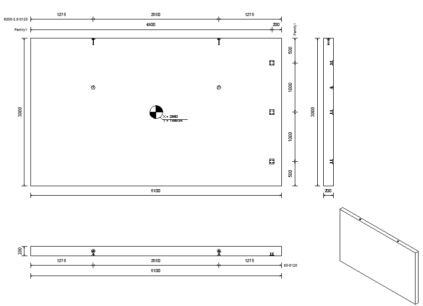
Rozsahy kotevních desek jsou kótovány ve všech pohledech (pomocí jedné kóty, protože se jedná vždy o stejnou rodinu).
V horním a předním pohledu je kótována pouze deska (bez ukotvení), protože v těchto pohledech jsou viditelné pouze kulaté plochy ukotvení, které proto nemají žádné reference na kótu.


panel Segmentace
(Rozdělit) rozdělte stěnu.
panel Výroba
(Dílenské výkresy) vytvořte pro sestavu dílenský výkres.
